15/24
Paylaş
Resmi Orjinal Boyutunda Göster
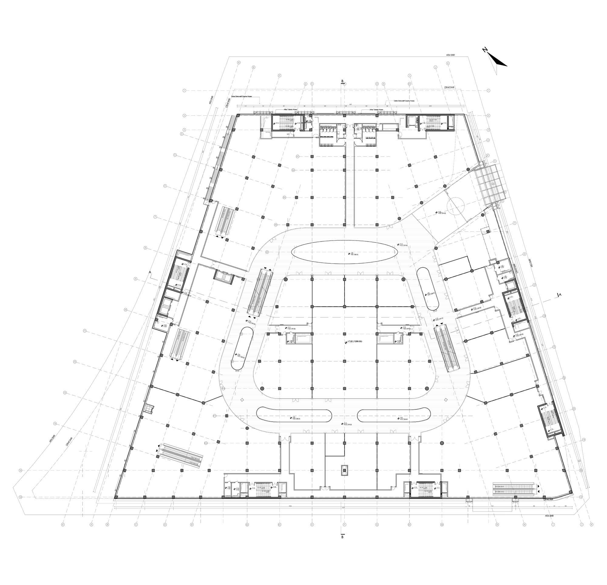
PrimeMall Sivas
Project Location: Sivas
Project Office: A Tasarım Mimarlık
Project Type: Shopping Mall
Proje Tipi Grubu: Commercial
Tasarım Ekibi: Ali Osman Öztürk
Employer: Prime Development ve Sivas Yatırım Ortaklığı A.Ş
Yardımcı: Asu Çetinkaya, Canan Arslan, Durmuş Ursun, Elif Dunay Baran, Hasret Devran İnce, Levent Balcı, Mürvet Şahin, Niyazi Ayvaz, Sinan Özkan
Ana Yüklenici: Prime Development ve Sivas Yatırım Ortaklığı A.Ş
Peyzaj Mimarlığı: Arzu Nuhoğlu Peyzaj Tasarım
Projcet Manager: Ali Osman Öztürk, Levent Balcı, Canan Arslan, Mürvet Şahin, Elif Dunay Baran, Berkay Öğünç
Lighting Project: ON/OFF Aydınlatma Tasarımı
Structural Project: Yüksek Proje
Mechanical Project: Metta Mühendislik
Electrical Project: Yurdakul Mühendislik
Plumbing Project: Metta Mühendislik
Çelik Projesi: Yüksek Proje
Altyapı Projesi: Köroğlu Mühendislik
Yangın Tahliye Projesi: A Tasarım Mimarlık
Fire Safety Consultant: Etik Mühendislik
Construction Site Manager: Melih Özturan
Project Start Date: 2015
Project End Date: 2016
Construction Start Date: 2015
Construction End Date: 2016
Building Plot Area: 18,929 m²
Total Construction Area: 90,000 m²