16/24
Paylaş
Resmi Orjinal Boyutunda Göster
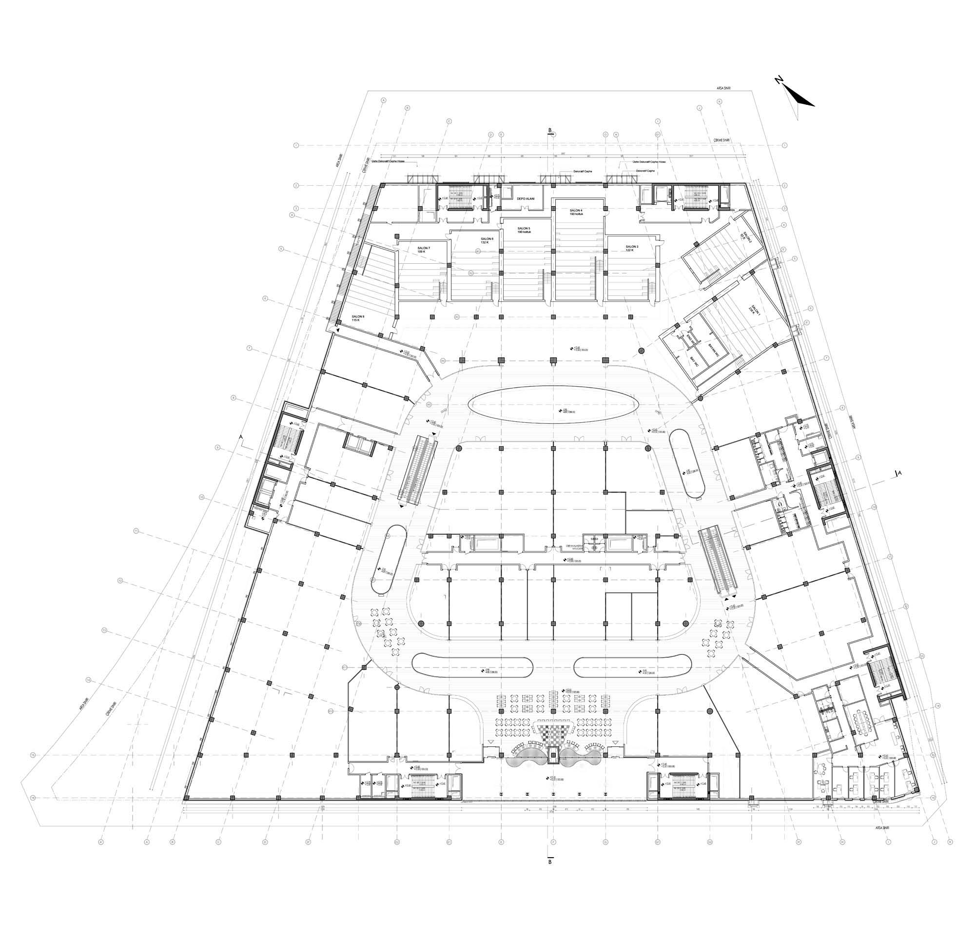
PrimeMall Sivas
Proje Yeri: Sivas
Proje Ofisi: A Tasarım Mimarlık
Proje Tipi: Alışveriş Merkezi
Proje Tipi Grubu: Ticari
Tasarım Ekibi: Ali Osman Öztürk
İşveren: Prime Development ve Sivas Yatırım Ortaklığı A.Ş
Yardımcı: Asu Çetinkaya, Canan Arslan, Durmuş Ursun, Elif Dunay Baran, Hasret Devran İnce, Levent Balcı, Mürvet Şahin, Niyazi Ayvaz, Sinan Özkan
Ana Yüklenici: Prime Development ve Sivas Yatırım Ortaklığı A.Ş
Peyzaj Mimarlığı: Arzu Nuhoğlu Peyzaj Tasarım
Proje Yöneticisi: Ali Osman Öztürk, Levent Balcı, Canan Arslan, Mürvet Şahin, Elif Dunay Baran, Berkay Öğünç
Aydınlatma Projesi: ON/OFF Aydınlatma Tasarımı
Statik Projesi: Yüksek Proje
Mekanik Projesi: Metta Mühendislik
Elektrik Projesi: Yurdakul Mühendislik
Tesisat Projesi: Metta Mühendislik
Çelik Projesi: Yüksek Proje
Altyapı Projesi: Köroğlu Mühendislik
Yangın Tahliye Projesi: A Tasarım Mimarlık
Yangın Güvenlik Danışmanı: Etik Mühendislik
Şantiye Yöneticisi: Melih Özturan
Proje Başlangıç Yılı: 2015
Proje Bitiş Yılı: 2016
İnşaat Başlangıç Yılı: 2015
İnşaat Bitiş Yılı: 2016
Arsa Alanı: 18,929 m²
Toplam İnşaat Alanı: 90,000 m²