19/29
Paylaş
Resmi Orjinal Boyutunda Göster
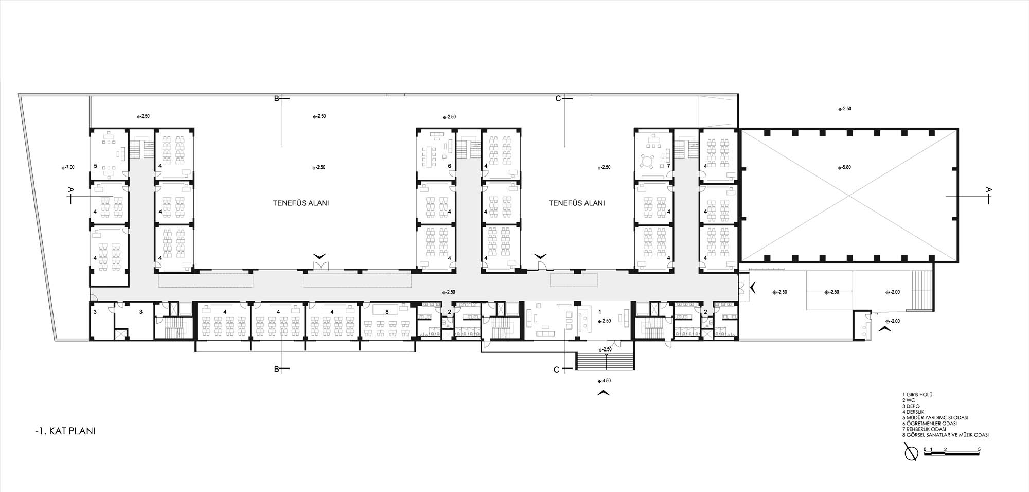
Çekmeköyde Özel Okul
Project Location: Çekmeköy, İstanbul
Project Office: Aboutblank
Tasarım Ekibi: Hasan Sıtkı Gümüşsoy, Ozan Özdilek, Erhan Vural, Gökhan Kodalak
Employer: Konur İnşaat
Yardımcı: Osman Ural, Ece Sıla Bora, Ayça Yontarım
Ana Yüklenici: Konur İnşaat
Photography: Alp Eren, ALTKAT Architectural Photography
Project Start Date: 2013
Project End Date: 2016
Construction Start Date: 2015
Construction End Date: 2016
Building Plot Area: 6,442 m2
Total Construction Area: 15,000 m²