21/29
Paylaş
Resmi Orjinal Boyutunda Göster
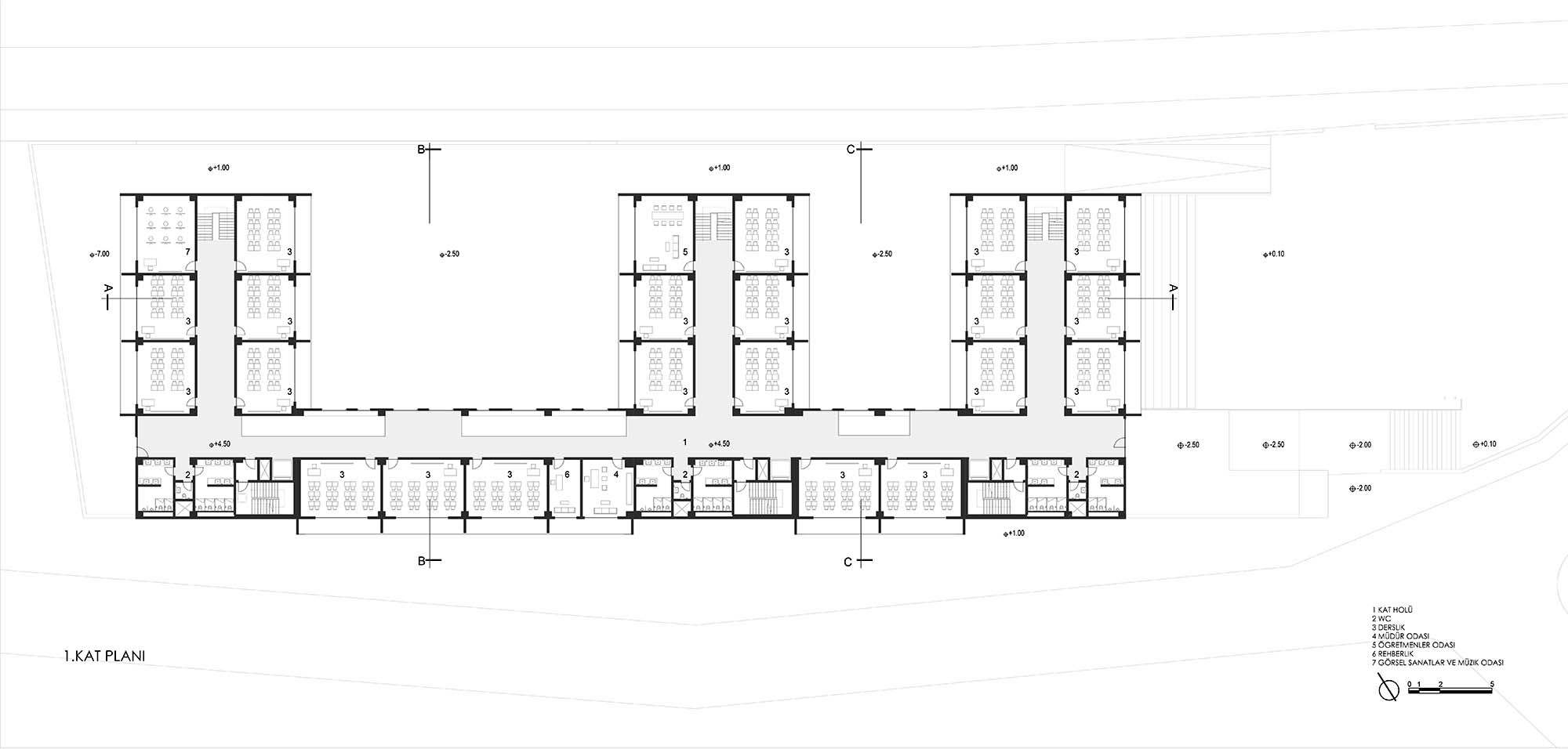
Çekmeköyde Özel Okul
Proje Yeri: Çekmeköy, İstanbul
Proje Ofisi: Aboutblank
Tasarım Ekibi: Hasan Sıtkı Gümüşsoy, Ozan Özdilek, Erhan Vural, Gökhan Kodalak
İşveren: Konur İnşaat
Yardımcı: Osman Ural, Ece Sıla Bora, Ayça Yontarım
Ana Yüklenici: Konur İnşaat
Fotoğraf: Alp Eren, ALTKAT Architectural Photography
Proje Başlangıç Yılı: 2013
Proje Bitiş Yılı: 2016
İnşaat Başlangıç Yılı: 2015
İnşaat Bitiş Yılı: 2016
Arsa Alanı: 6,442 m2
Toplam İnşaat Alanı: 15,000 m²