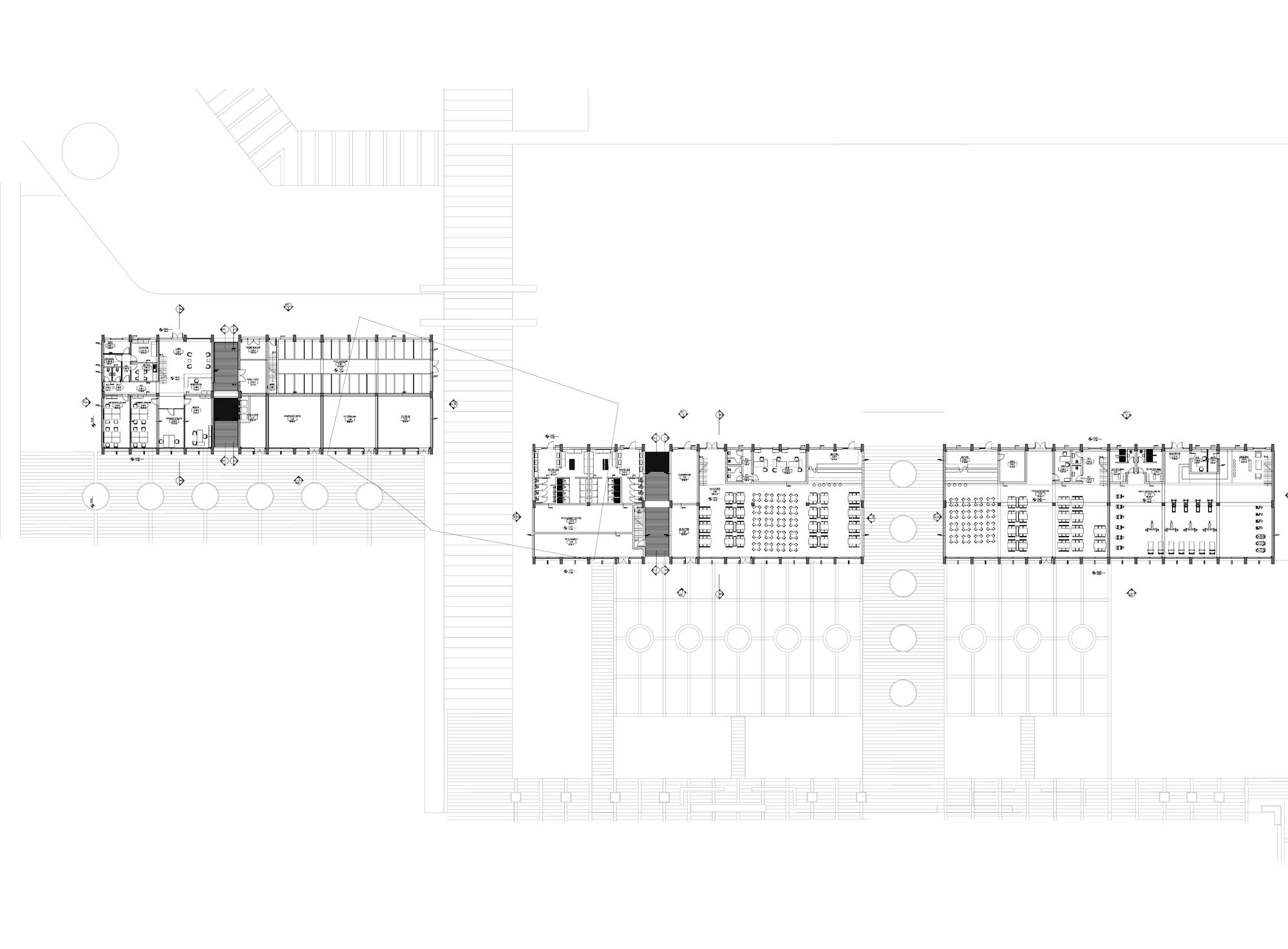
Plan
21/24
Paylaş
Resmi Orjinal Boyutunda Göster
Mersin Marina
Proje Yeri: Mersin
Proje Ofisi: Öncüoğlu + ACP Mimarlık Şehircilik
Proje Tipi: Deniz Ulaşım Yapıları, Alışveriş Merkezi
Tasarım Ekibi: Enis Öncüoğlu, Cem Altınöz, Cumhur Keskinok, Önder Kaya
İşveren: DLH Müdürlüğü
Yardımcı: Sibel Konu, Özge Özden, Handan Yavuz, Esra Bayındır, Bilge Binbir, Fatih Kaplanoğlu, Savaş Çakmakkaya, Yolcu Gündüz, Kemal Kocaili, Tuna Şentuna
Peyzaj Mimarlığı: Can Kubin
İç Mekan Projesi: Öncüoğlu + ACP Mimarlık Şehircilik
Statik Projesi: Konkan Mühendislik
Mekanik Projesi: Akay Mühendislik
Elektrik Projesi: Moskay Mühendislik
Proje Başlangıç Yılı: 2009
Proje Bitiş Yılı: 2010
İnşaat Başlangıç Yılı: 2010
İnşaat Bitiş Yılı: 2011
Arsa Alanı: 209.817 m2
Toplam İnşaat Alanı: 10.465 m2