Plan
22/24
Paylaş
Resmi Orjinal Boyutunda Göster
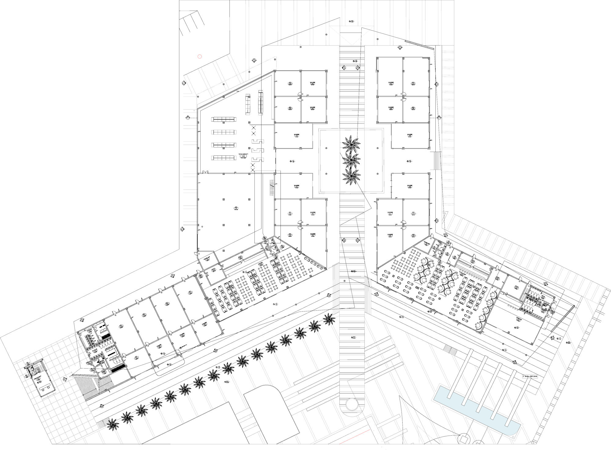
Mersin Marina
Project Location: Mersin
Project Office: Öncüoğlu + ACP Mimarlık Şehircilik
Project Type: Marine Transportation Buildings, Shopping Mall
Tasarım Ekibi: Enis Öncüoğlu, Cem Altınöz, Cumhur Keskinok, Önder Kaya
Employer: DLH Müdürlüğü
Yardımcı: Sibel Konu, Özge Özden, Handan Yavuz, Esra Bayındır, Bilge Binbir, Fatih Kaplanoğlu, Savaş Çakmakkaya, Yolcu Gündüz, Kemal Kocaili, Tuna Şentuna
Peyzaj Mimarlığı: Can Kubin
Interior Architecture: Öncüoğlu + ACP Mimarlık Şehircilik
Structural Project: Konkan Mühendislik
Mechanical Project: Akay Mühendislik
Electrical Project: Moskay Mühendislik
Project Start Date: 2009
Project End Date: 2010
Construction Start Date: 2010
Construction End Date: 2011
Building Plot Area: 209.817 m2
Total Construction Area: 10.465 m2