31/43
Paylaş
Resmi Orjinal Boyutunda Göster
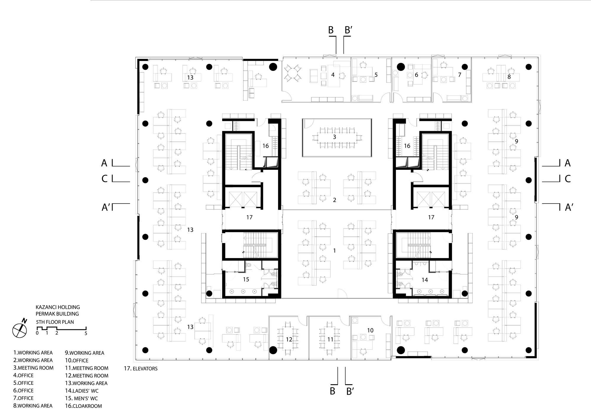
Kazancı Holding Binası
Proje Yeri: Beykoz, İstanbul
Proje Ofisi: Öney Mimarlık
Proje Tipi: Ofis
Proje Tipi Grubu: Ticari
Tasarım Ekibi: Mustafa Öney, Kerem Gürbüzer, Gözde Öney Gürbüzer, Hande Öney
İşveren: Kazancı Holding, AKSA
Ana Yüklenici: AKSA
Proje Yöneticisi: Mustafa Öney
Aydınlatma Projesi: Fritzher
Yangın Güvenlik Danışmanı: Başak Yapı
Fotoğraf: Ali Kabaş Fotoğrafçılık
Mimari Mesleki Kontrollük: Öney Mimarlık
Proje Başlangıç Yılı: 2015
Proje Bitiş Yılı: 2016
İnşaat Bitiş Yılı: 2016
Arsa Alanı: 2,800 m2
Toplam İnşaat Alanı: 8,420 m2