33/43
Paylaş
Resmi Orjinal Boyutunda Göster
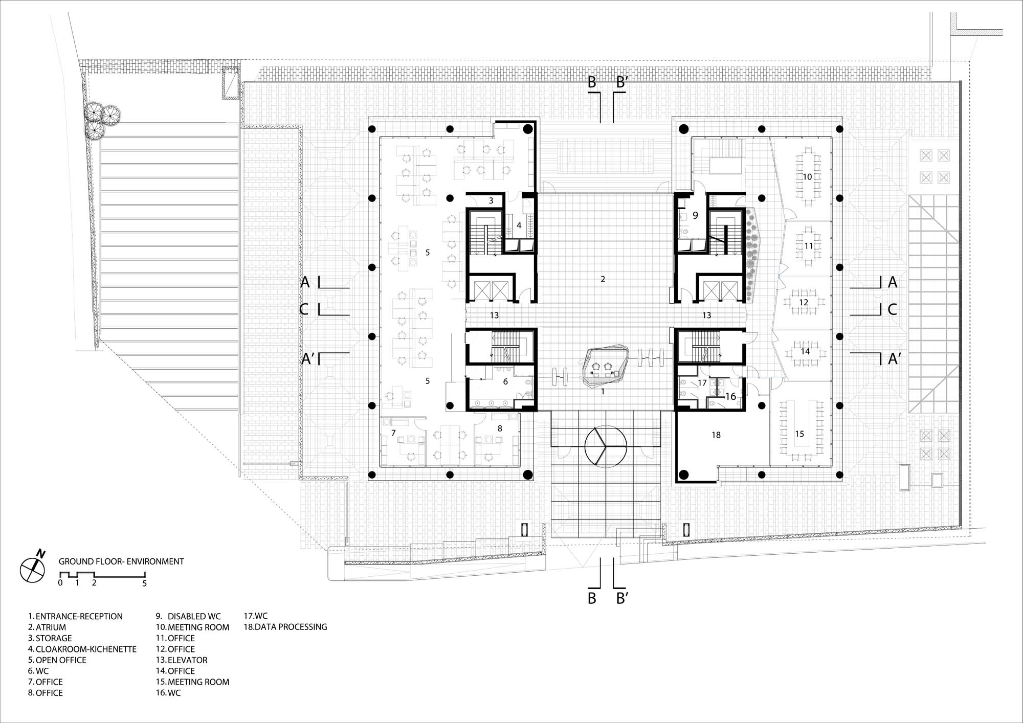
Kazancı Holding Binası
Project Location: Beykoz, İstanbul
Project Office: Öney Mimarlık
Project Type: Offices
Proje Tipi Grubu: Commercial
Tasarım Ekibi: Mustafa Öney, Kerem Gürbüzer, Gözde Öney Gürbüzer, Hande Öney
Employer: Kazancı Holding, AKSA
Ana Yüklenici: AKSA
Projcet Manager: Mustafa Öney
Lighting Project: Fritzher
Fire Safety Consultant: Başak Yapı
Photography: Ali Kabaş Fotoğrafçılık
Architectural Supervision: Öney Mimarlık
Project Start Date: 2015
Project End Date: 2016
Construction End Date: 2016
Building Plot Area: 2,800 m2
Total Construction Area: 8,420 m2