24/38
Paylaş
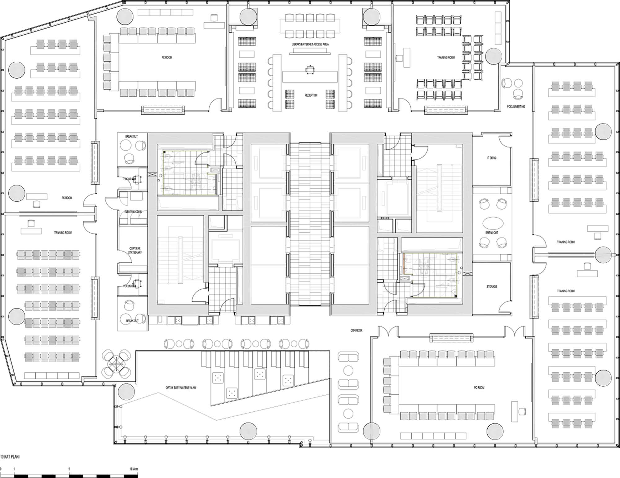
Resmi Orjinal Boyutunda Göster
Allianz İstanbul HQ
Proje Yeri: Ataşehir, İstanbul
Proje Ofisi: Swanke Hayden Connell Mimarlık (AukettSwanke)
Proje Tipi: Ofis
Proje Tipi Grubu: Ticari
Tasarım Ekibi: Burcu Şenparlak, Duygu Gülaydın, Erkmen Korkmaz, Gonca Atasayan
İşveren: Allianz Türkiye
Danışman: Netaş, Idisplay, Altensis
Yardımcı: Simge Kutsal, Gökçe Hekim, Bahar Esen, Sinem Oymak, Nazlı Gönen
Ana Yüklenici: Sistema Teknolojik Yapı
Proje Yöneticisi: IMS, Burcu Şenparlak, Swanke Hayden Connell Mimarlık (AukettSwanke)
Aydınlatma Projesi: Optimum Aydınlatma, Tuba Büyüktaşkın
Grafik Tasarım: Didem Ateş
Mekanik Projesi: Anka Mühendislik İnşaat
Elektrik Projesi: Enmar Mühendislik
Akustik Projesi: Duyal Karagözoğlu
Fotoğraf: Gürkan Akay
Mimari Mesleki Kontrollük: Swanke Hayden Connell Mimarlık (AukettSwanke)
Proje Başlangıç Yılı: 2014
Proje Bitiş Yılı: 2015
İnşaat Başlangıç Yılı: 2015
İnşaat Bitiş Yılı: 2016
Toplam İnşaat Alanı: 28,000 m²