38/38
Paylaş
Resmi Orjinal Boyutunda Göster
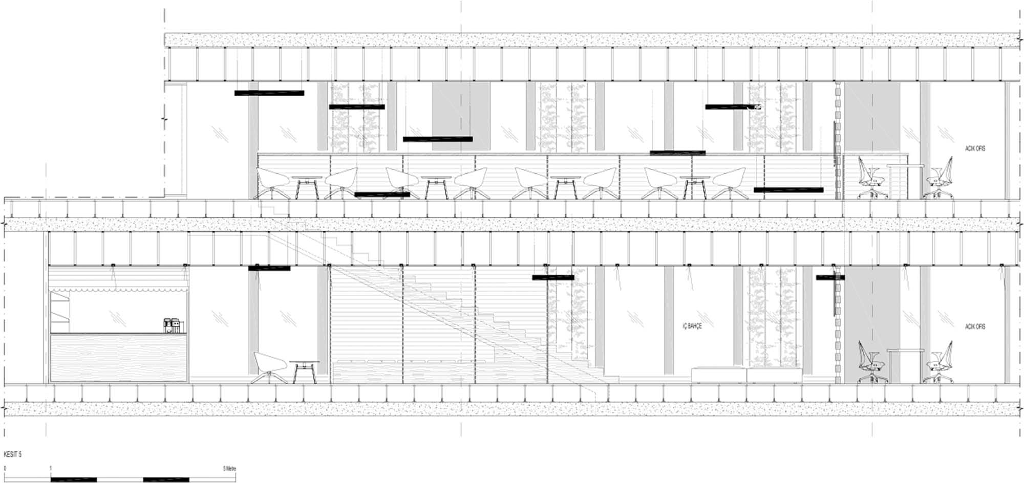
Allianz İstanbul HQ
Project Location: Ataşehir, İstanbul
Project Office: Swanke Hayden Connell Mimarlık (AukettSwanke)
Project Type: Offices
Proje Tipi Grubu: Commercial
Tasarım Ekibi: Burcu Şenparlak, Duygu Gülaydın, Erkmen Korkmaz, Gonca Atasayan
Employer: Allianz Türkiye
Consultant: Netaş, Idisplay, Altensis
Yardımcı: Simge Kutsal, Gökçe Hekim, Bahar Esen, Sinem Oymak, Nazlı Gönen
Ana Yüklenici: Sistema Teknolojik Yapı
Projcet Manager: IMS, Burcu Şenparlak, Swanke Hayden Connell Mimarlık (AukettSwanke)
Lighting Project: Optimum Aydınlatma, Tuba Büyüktaşkın
Grafik Tasarım: Didem Ateş
Mechanical Project: Anka Mühendislik İnşaat
Electrical Project: Enmar Mühendislik
Akustik Projesi: Duyal Karagözoğlu
Photography: Gürkan Akay
Architectural Supervision: Swanke Hayden Connell Mimarlık (AukettSwanke)
Project Start Date: 2014
Project End Date: 2015
Construction Start Date: 2015
Construction End Date: 2016
Total Construction Area: 28,000 m²