13/26
Paylaş
Resmi Orjinal Boyutunda Göster
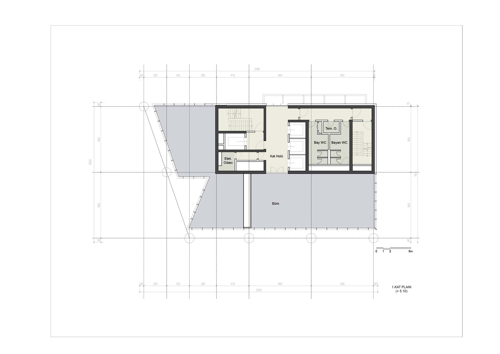
Cepa Ofis
Project Location: Ankara, Çankaya
Project Office: Öncüoğlu + ACP Mimarlık Şehircilik
Project Type: Offices
Proje Tipi Grubu: Commercial
Tasarım Ekibi: Enis Öncüoğlu, Önder Kaya, Cem Altınöz
Employer: Üstünçelik Malzeme İmalat Montaj
Yardımcı: Yolcu Gündüz, Evrim Özlem Kale, Abbas Yasin Çakır, Ayyüce Yalçın, Hasan Tahsin Güngör
Ana Yüklenici: Üstünçelik Malzeme İmalat Montaj
Peyzaj Mimarlığı: Çevre Peyzaj
Interior Architecture: Engin Öncüoğlu, Arzu Gençaslan, Tuna Şentuna, Şule Erkol Yazıcı
Projcet Manager: Handan Yavuz
Lighting Project: Arlight, Üstünçelik Malzeme İmalat Montaj
Structural Project: Konkan Proje
Mechanical Project: Metta Proje
Electrical Project: Akay Proje
Plumbing Project: Metta Proje
Altyapı Projesi: Üstünçelik Malzeme İmalat Montaj
Yangın Tahliye Projesi: Soysal Mühendislik
Fire Safety Consultant: Soysal Mühendislik
Model: Hasan Tahsin Güngör
Photography: Öncüoğlu + ACP Mimarlık Şehircilik
Architectural Supervision: Öncüoğlu + ACP Mimarlık Şehircilik
Project Start Date: 2014
Project End Date: 2015
Construction Start Date: 2015
Construction End Date: 2016
Building Plot Area: 2,826 m²
Total Construction Area: 21,475 m²