24/26
Paylaş
Resmi Orjinal Boyutunda Göster
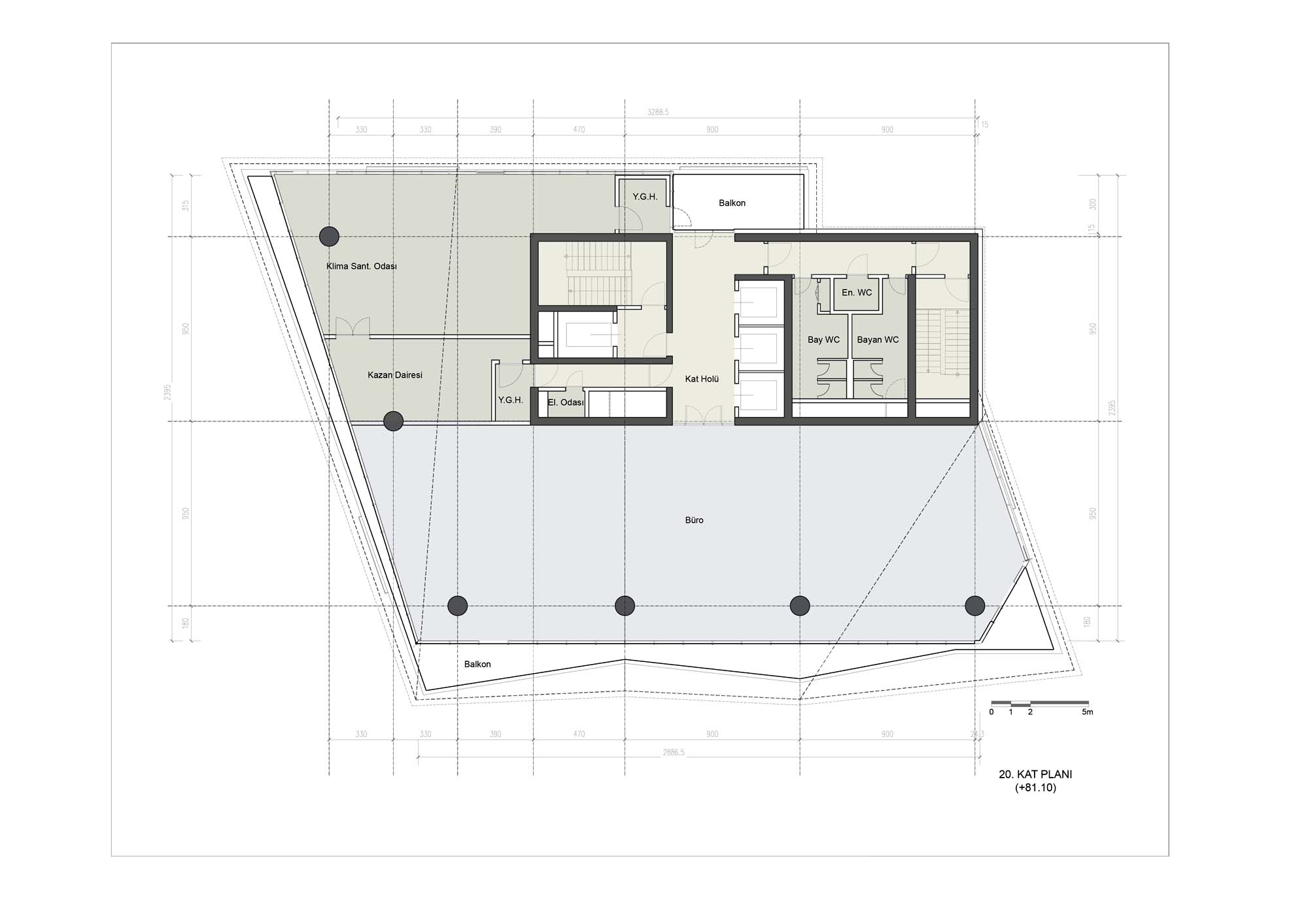
Cepa Ofis
Proje Yeri: Ankara, Çankaya
Proje Ofisi: Öncüoğlu + ACP Mimarlık Şehircilik
Proje Tipi: Ofis
Proje Tipi Grubu: Ticari
Tasarım Ekibi: Enis Öncüoğlu, Önder Kaya, Cem Altınöz
İşveren: Üstünçelik Malzeme İmalat Montaj
Yardımcı: Yolcu Gündüz, Evrim Özlem Kale, Abbas Yasin Çakır, Ayyüce Yalçın, Hasan Tahsin Güngör
Ana Yüklenici: Üstünçelik Malzeme İmalat Montaj
Peyzaj Mimarlığı: Çevre Peyzaj
İç Mekan Projesi: Engin Öncüoğlu, Arzu Gençaslan, Tuna Şentuna, Şule Erkol Yazıcı
Proje Yöneticisi: Handan Yavuz
Aydınlatma Projesi: Arlight, Üstünçelik Malzeme İmalat Montaj
Statik Projesi: Konkan Proje
Mekanik Projesi: Metta Proje
Elektrik Projesi: Akay Proje
Tesisat Projesi: Metta Proje
Altyapı Projesi: Üstünçelik Malzeme İmalat Montaj
Yangın Tahliye Projesi: Soysal Mühendislik
Yangın Güvenlik Danışmanı: Soysal Mühendislik
Maket: Hasan Tahsin Güngör
Fotoğraf: Öncüoğlu + ACP Mimarlık Şehircilik
Mimari Mesleki Kontrollük: Öncüoğlu + ACP Mimarlık Şehircilik
Proje Başlangıç Yılı: 2014
Proje Bitiş Yılı: 2015
İnşaat Başlangıç Yılı: 2015
İnşaat Bitiş Yılı: 2016
Arsa Alanı: 2,826 m²
Toplam İnşaat Alanı: 21,475 m²