10/12
Paylaş
Resmi Orjinal Boyutunda Göster
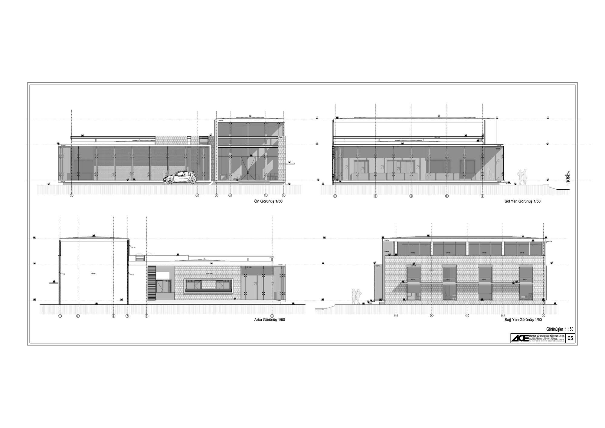
Nefis Çankaya Evleri Satış Ofisi
Project Location: Ankara, Çankaya
Project Office: ACE Mimarlık
Project Type: Sales Office
Proje Tipi Grubu: Commercial
Tasarım Ekibi: Orçun Ersan, Nilgün Deniz, Uğur Furtana, Gerta Ajazi, Aykut Akdeniz
Employer: YP İnşaat
Ana Yüklenici: YP İnşaat
Project Start Date: 2014
Project End Date: 2015
Construction Start Date: 2015
Construction End Date: 2016