9/12
Paylaş
Resmi Orjinal Boyutunda Göster
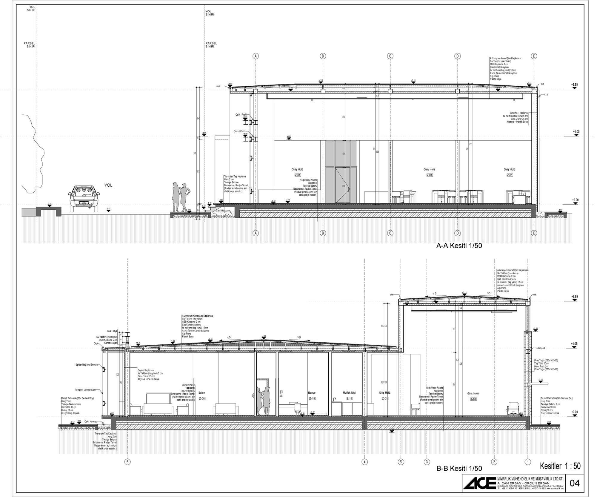
Nefis Çankaya Evleri Satış Ofisi
Proje Yeri: Ankara, Çankaya
Proje Ofisi: ACE Mimarlık
Proje Tipi: Satış Ofisi
Proje Tipi Grubu: Ticari
Tasarım Ekibi: Orçun Ersan, Nilgün Deniz, Uğur Furtana, Gerta Ajazi, Aykut Akdeniz
İşveren: YP İnşaat
Ana Yüklenici: YP İnşaat
Proje Başlangıç Yılı: 2014
Proje Bitiş Yılı: 2015
İnşaat Başlangıç Yılı: 2015
İnşaat Bitiş Yılı: 2016