2/31
Paylaş
Resmi Orjinal Boyutunda Göster
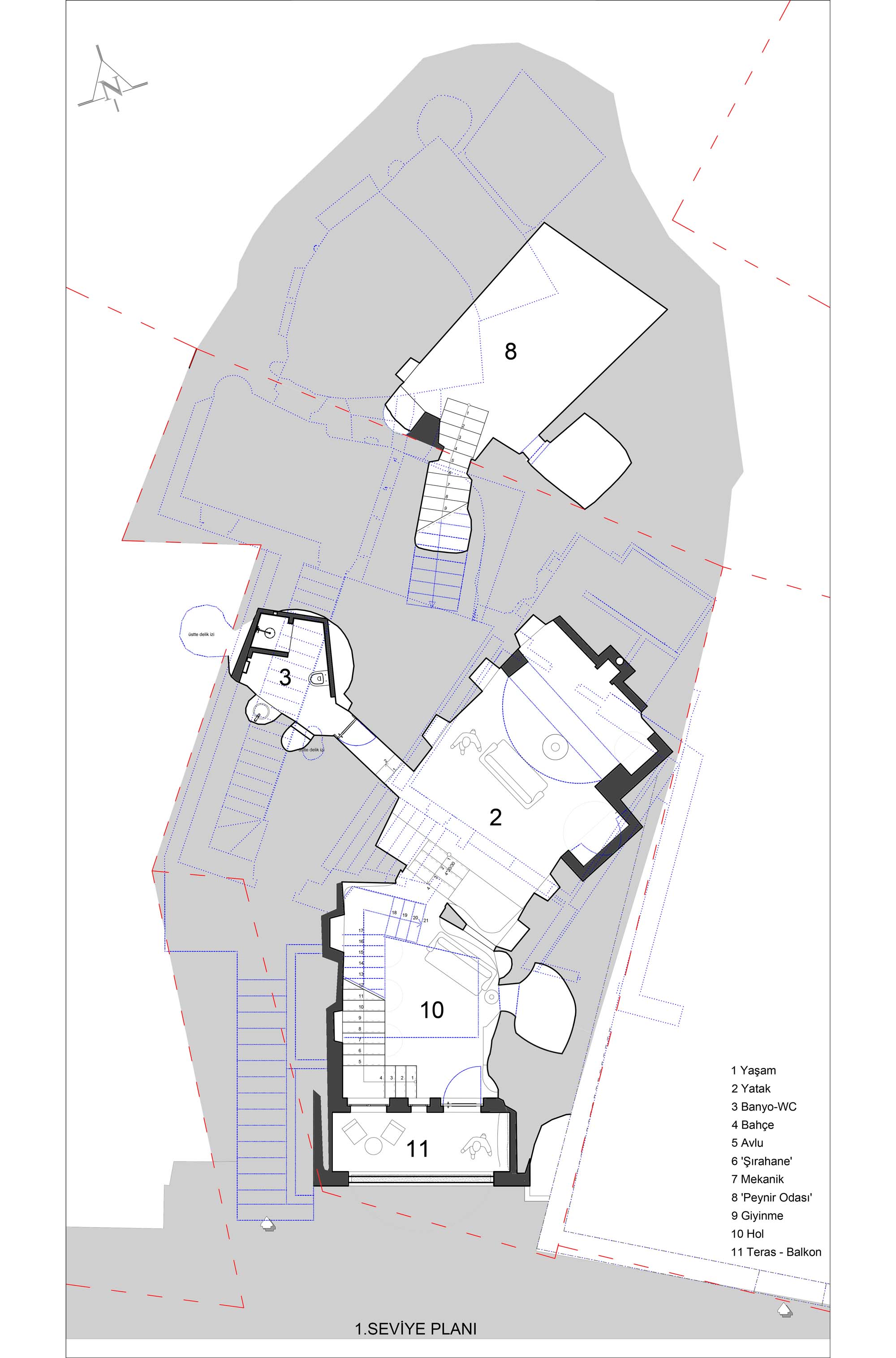
Kavak Konak
Project Location: Uçhisar, Nevşehir
Project Office: Argos Yapı
Project Type: Hotel / Motel
Proje Tipi Grubu: Konaklama
Tasarım Ekibi: Aslı Özbay
Employer: Argos Turizm
Yardımcı: Hakan Mahiroğlu, Valeska Wegner, Bilal Akkoç, Yusuf Nergis, Coline Gauther
Ana Yüklenici: Argos Yapı
Alt Yüklenici: Temel İnşaat
Interior Architecture: Hakan Ezer
Projcet Manager: Aslı Özbay
Structural Project: Som Mimarlık
Mechanical Project: Kromsan Isı
Electrical Project: Markas Mühendislik
Architectural Supervision: Aslı Özbay
Construction Site Manager: Aslı Özbay
Project Start Date: 2011
Project End Date: 2014
Construction Start Date: 2014
Construction End Date: 2016
Building Plot Area: 200 m2
Total Construction Area: 273 m2