5/31
Paylaş
Resmi Orjinal Boyutunda Göster
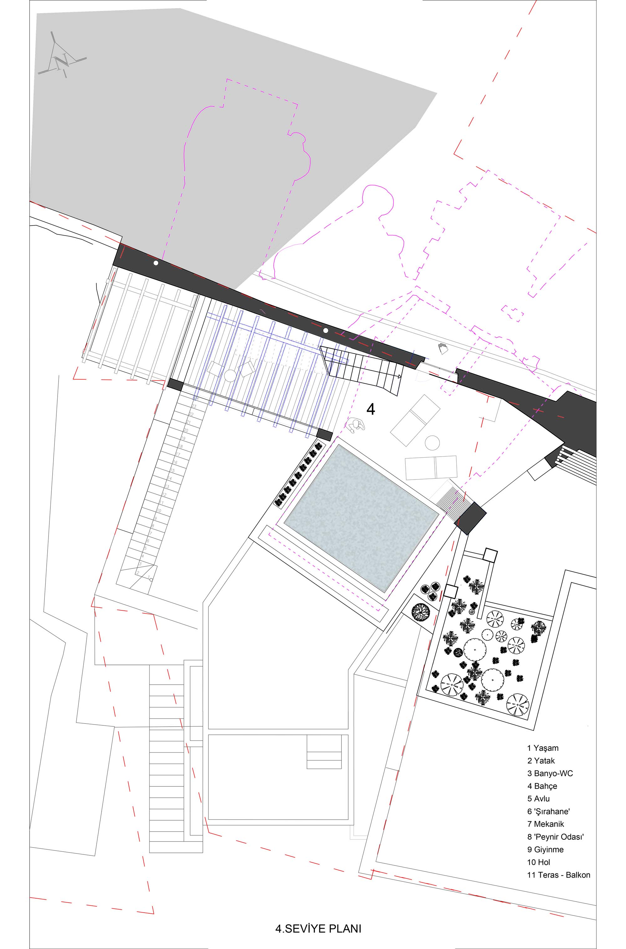
Kavak Konak
Proje Yeri: Uçhisar, Nevşehir
Proje Ofisi: Argos Yapı
Proje Tipi: Otel / Motel
Proje Tipi Grubu: Konaklama
Tasarım Ekibi: Aslı Özbay
İşveren: Argos Turizm
Yardımcı: Hakan Mahiroğlu, Valeska Wegner, Bilal Akkoç, Yusuf Nergis, Coline Gauther
Ana Yüklenici: Argos Yapı
Alt Yüklenici: Temel İnşaat
İç Mekan Projesi: Hakan Ezer
Proje Yöneticisi: Aslı Özbay
Statik Projesi: Som Mimarlık
Mekanik Projesi: Kromsan Isı
Elektrik Projesi: Markas Mühendislik
Mimari Mesleki Kontrollük: Aslı Özbay
Şantiye Yöneticisi: Aslı Özbay
Proje Başlangıç Yılı: 2011
Proje Bitiş Yılı: 2014
İnşaat Başlangıç Yılı: 2014
İnşaat Bitiş Yılı: 2016
Arsa Alanı: 200 m2
Toplam İnşaat Alanı: 273 m2