19/31
Paylaş
Resmi Orjinal Boyutunda Göster
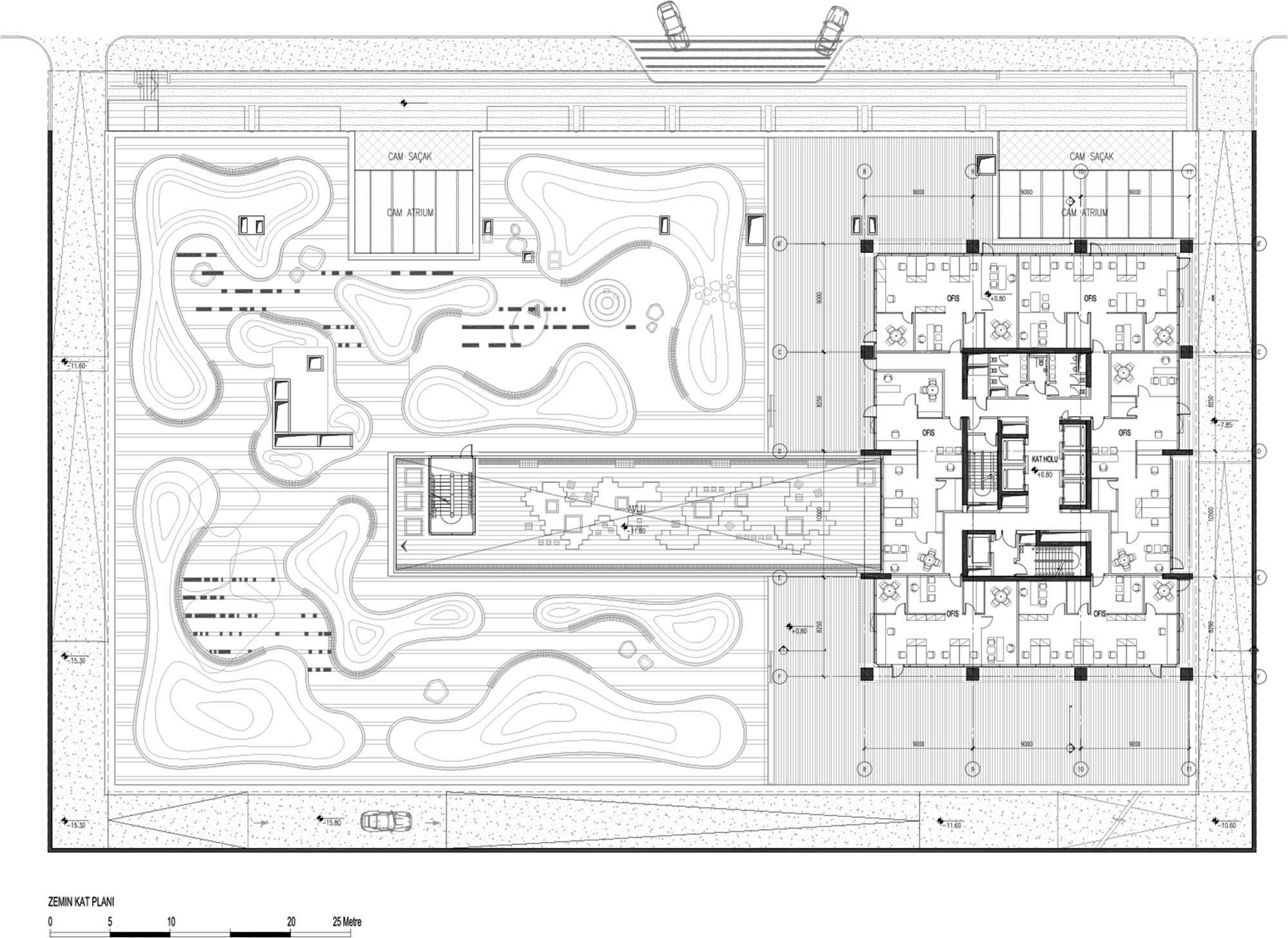
Nidakule Ataşehir Kuzey-Güney
Project Location: İstanbul, Ataşehir
Project Office: Swanke Hayden Connell Mimarlık (AukettSwanke)
Project Type: Offices
Proje Tipi Grubu: Commercial
Tasarım Ekibi: Steve Brown, Bülent Dündar, Maurice Vaneijs, Bengi Amaç, Duygu Kavzak
Architectural Project Team: Duygu Gülaydın, Kaan Atala, Hasan Tunay Cengiz, Seide Gedik Kebapçı
Employer: Tahincioglu Gayrimenkul, Nida İnşaat
Ana Yüklenici: Tahincioğlu Grubu Ortak Girişimi
Peyzaj Mimarlığı: Spiga Peyzaj Proje Danışmanlık
Facade Design: CWG Danışmanlık
Lighting Project: Studio Dekor Lighting Solutions
Structural Project: Yapı Teknik İnşaat
Mechanical Project: Dinamik Proje Mühendislik
Electrical Project: Enkom Mühendislik
Çelik Projesi: Yapı Teknik İnşaat
Akustik Projesi: Altensis İnşaat Enerji
Acoustic Consultant: Altensis İnşaat Enerji
Yangın Tahliye Projesi: Etik Mühendislik
Fire Safety Consultant: Etik Mühendislik
Model: Atölye K
Photography: Gürkan Akay
Construction Site Manager: Kader Şahin
Project Start Date: 2013
Project End Date: 2014
Construction Start Date: 2015
Construction End Date: 2016
Building Plot Area: 19,554 m²3, 19,554 m²
Total Construction Area: 150,000 m²