22/31
Paylaş
Resmi Orjinal Boyutunda Göster
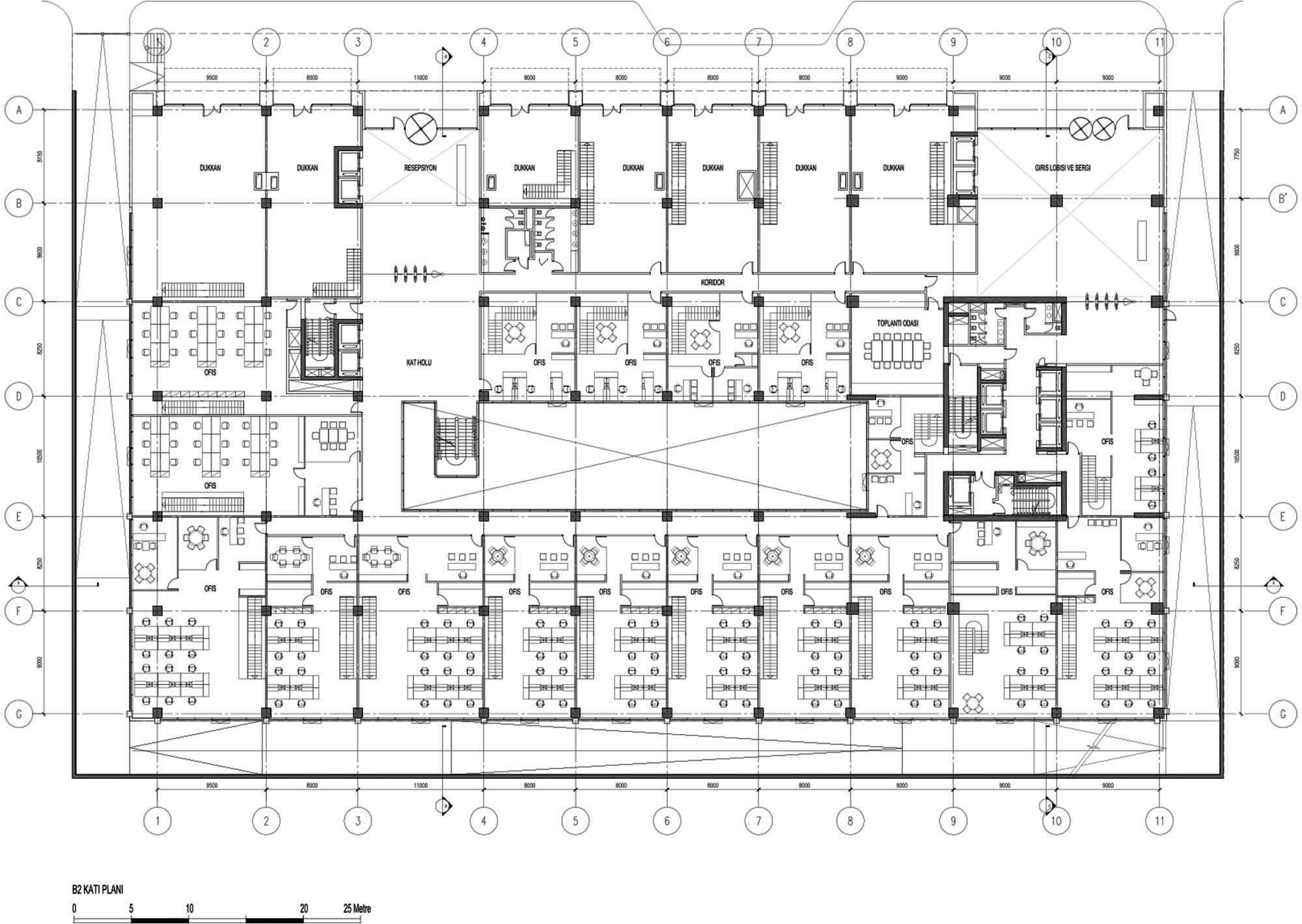
Nidakule Ataşehir Kuzey-Güney
Proje Yeri: İstanbul, Ataşehir
Proje Ofisi: Swanke Hayden Connell Mimarlık (AukettSwanke)
Proje Tipi: Ofis
Proje Tipi Grubu: Ticari
Tasarım Ekibi: Steve Brown, Bülent Dündar, Maurice Vaneijs, Bengi Amaç, Duygu Kavzak
Mimari Proje Ekibi: Duygu Gülaydın, Kaan Atala, Hasan Tunay Cengiz, Seide Gedik Kebapçı
İşveren: Tahincioglu Gayrimenkul, Nida İnşaat
Ana Yüklenici: Tahincioğlu Grubu Ortak Girişimi
Peyzaj Mimarlığı: Spiga Peyzaj Proje Danışmanlık
Cephe Tasarımı: CWG Danışmanlık
Aydınlatma Projesi: Studio Dekor Lighting Solutions
Statik Projesi: Yapı Teknik İnşaat
Mekanik Projesi: Dinamik Proje Mühendislik
Elektrik Projesi: Enkom Mühendislik
Çelik Projesi: Yapı Teknik İnşaat
Akustik Projesi: Altensis İnşaat Enerji
Akustik Danışmanı: Altensis İnşaat Enerji
Yangın Tahliye Projesi: Etik Mühendislik
Yangın Güvenlik Danışmanı: Etik Mühendislik
Maket: Atölye K
Fotoğraf: Gürkan Akay
Şantiye Yöneticisi: Kader Şahin
Proje Başlangıç Yılı: 2013
Proje Bitiş Yılı: 2014
İnşaat Başlangıç Yılı: 2015
İnşaat Bitiş Yılı: 2016
Arsa Alanı: 19,554 m²3, 19,554 m²
Toplam İnşaat Alanı: 150,000 m²