25/41
Paylaş
Resmi Orjinal Boyutunda Göster
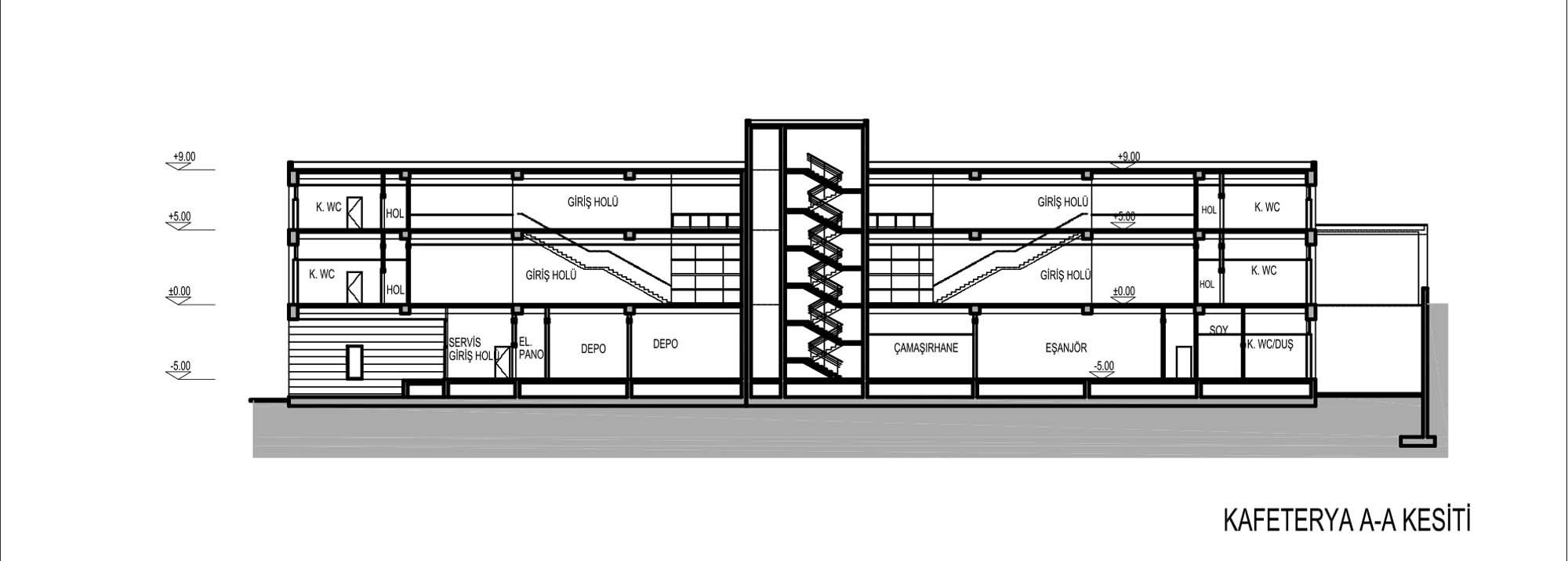
Şırnak Üniversitesi Kampüsü
Project Location: Şırnak
Project Office: TH ve İdil Mimarlık
Project Type: University Campus
Proje Tipi Grubu: Eğitim
Tasarım Ekibi: Hasan Özbay, Tamer Başbuğ, Baran İdil, Aslı Özbay
Employer: Şırnak Üniversitesi Rektörlüğü, Toplu Konut İdaresi (TOKİ)
Yardımcı: Mahsure Köse, Murat Ölgün, Özlem Arvas, Düşra Korkmaz
Ana Yüklenici: Özaras-Girişimciler-Didoray iş ortaklığı
Alt Yüklenici: Acar İnşaat
Peyzaj Mimarlığı: Serpil Öztekin
Projcet Manager: Hasan Özbay
Structural Project: Gökhan Beşbaş, Portal Proje
Mechanical Project: Fuzuli Topal
Electrical Project: Ali Gündüz, Gün Mühendislik, Oğuz Orhan, Erteknik Enerji
Plumbing Project: Fuzuli Topal
Çelik Projesi: Gökhan Beşbaş, Portal Proje
Altyapı Projesi: Ali Demircan
Yangın Tahliye Projesi: Emine Uygun
Model: Mustafa Can, M79 Maket Atölyesi
Construction Site Manager: Selim Balcı
Project Start Date: 2011
Project End Date: 2014
Construction Start Date: 2014
Construction End Date: 2016
Building Plot Area: 585,000 m2