35/41
Paylaş
Resmi Orjinal Boyutunda Göster
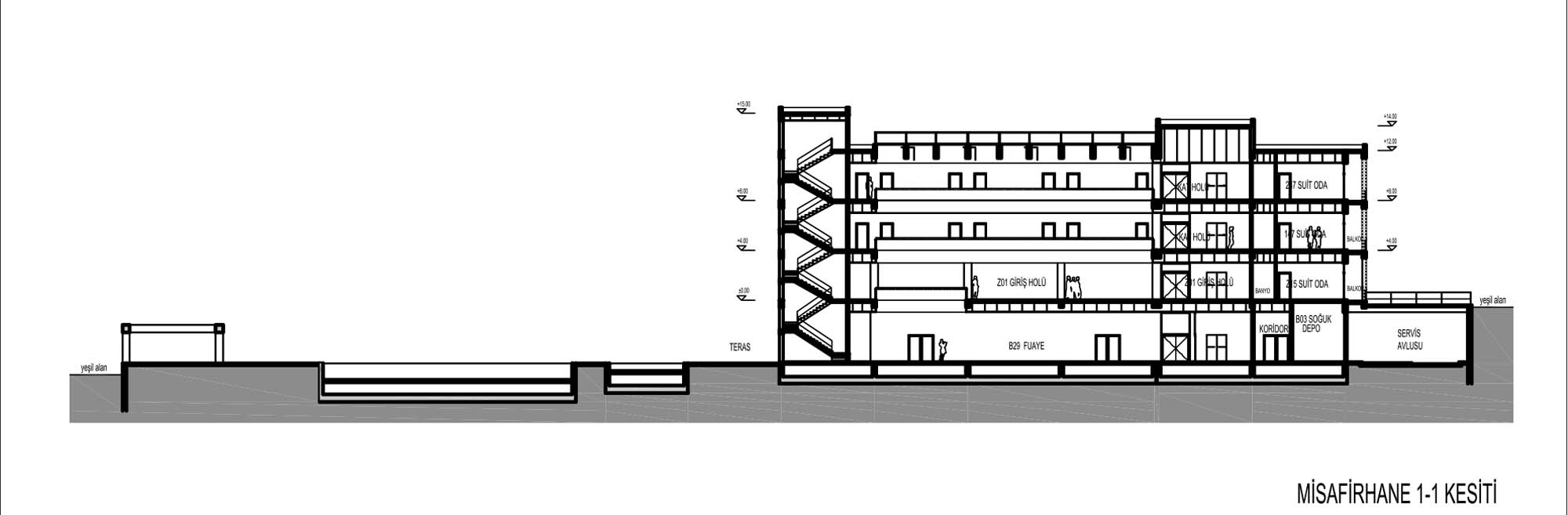
Şırnak Üniversitesi Kampüsü
Proje Yeri: Şırnak
Proje Ofisi: TH ve İdil Mimarlık
Proje Tipi: Üniversite Kampüsü
Proje Tipi Grubu: Eğitim
Tasarım Ekibi: Hasan Özbay, Tamer Başbuğ, Baran İdil, Aslı Özbay
İşveren: Şırnak Üniversitesi Rektörlüğü, Toplu Konut İdaresi (TOKİ)
Yardımcı: Mahsure Köse, Murat Ölgün, Özlem Arvas, Düşra Korkmaz
Ana Yüklenici: Özaras-Girişimciler-Didoray iş ortaklığı
Alt Yüklenici: Acar İnşaat
Peyzaj Mimarlığı: Serpil Öztekin
Proje Yöneticisi: Hasan Özbay
Statik Projesi: Gökhan Beşbaş, Portal Proje
Mekanik Projesi: Fuzuli Topal
Elektrik Projesi: Ali Gündüz, Gün Mühendislik, Oğuz Orhan, Erteknik Enerji
Tesisat Projesi: Fuzuli Topal
Çelik Projesi: Gökhan Beşbaş, Portal Proje
Altyapı Projesi: Ali Demircan
Yangın Tahliye Projesi: Emine Uygun
Maket: Mustafa Can, M79 Maket Atölyesi
Şantiye Yöneticisi: Selim Balcı
Proje Başlangıç Yılı: 2011
Proje Bitiş Yılı: 2014
İnşaat Başlangıç Yılı: 2014
İnşaat Bitiş Yılı: 2016
Arsa Alanı: 585,000 m2