4/26
Paylaş
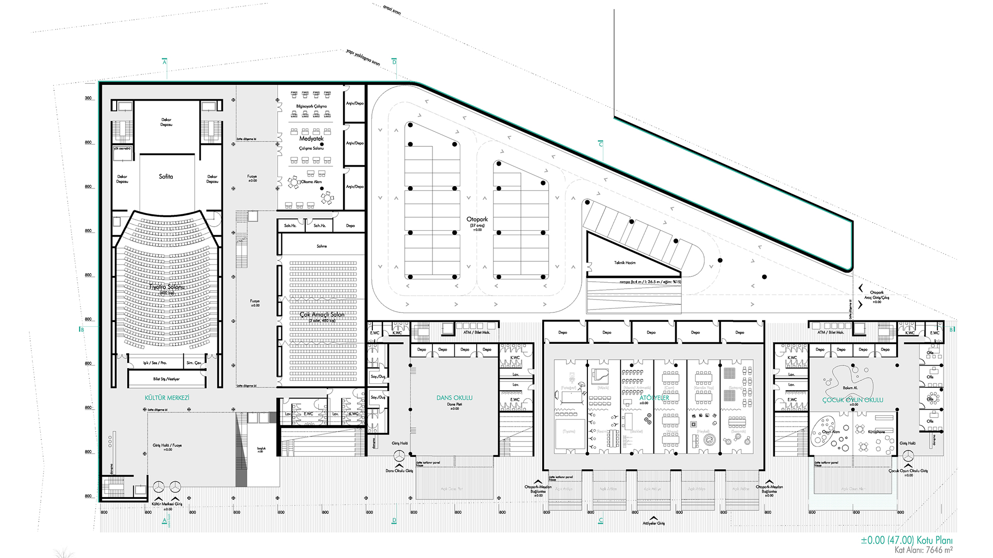
Resmi Orjinal Boyutunda Göster
2. Ödül, Evka 3 Sosyal Merkez ve Aktarma İstasyonu Yarışması
Proje Yeri: İzmir, Bornova
Proje Ofisi: SCRA Mimarlık
Proje Tipi: Kültür Merkezi, İstasyon / Durak
Proje Tipi Grubu: 2. Ödül
Tasarım Ekibi: Ramazan Avcı, Seden Cinasal Avcı
Danışman: Elvan Ender, Mehmet Zafer Kınacı
Yardımcı: Merve Özduman, Mert Doğaray, Nil Özkır, Yusra Ekin, Mustafa Can