5/26
Paylaş
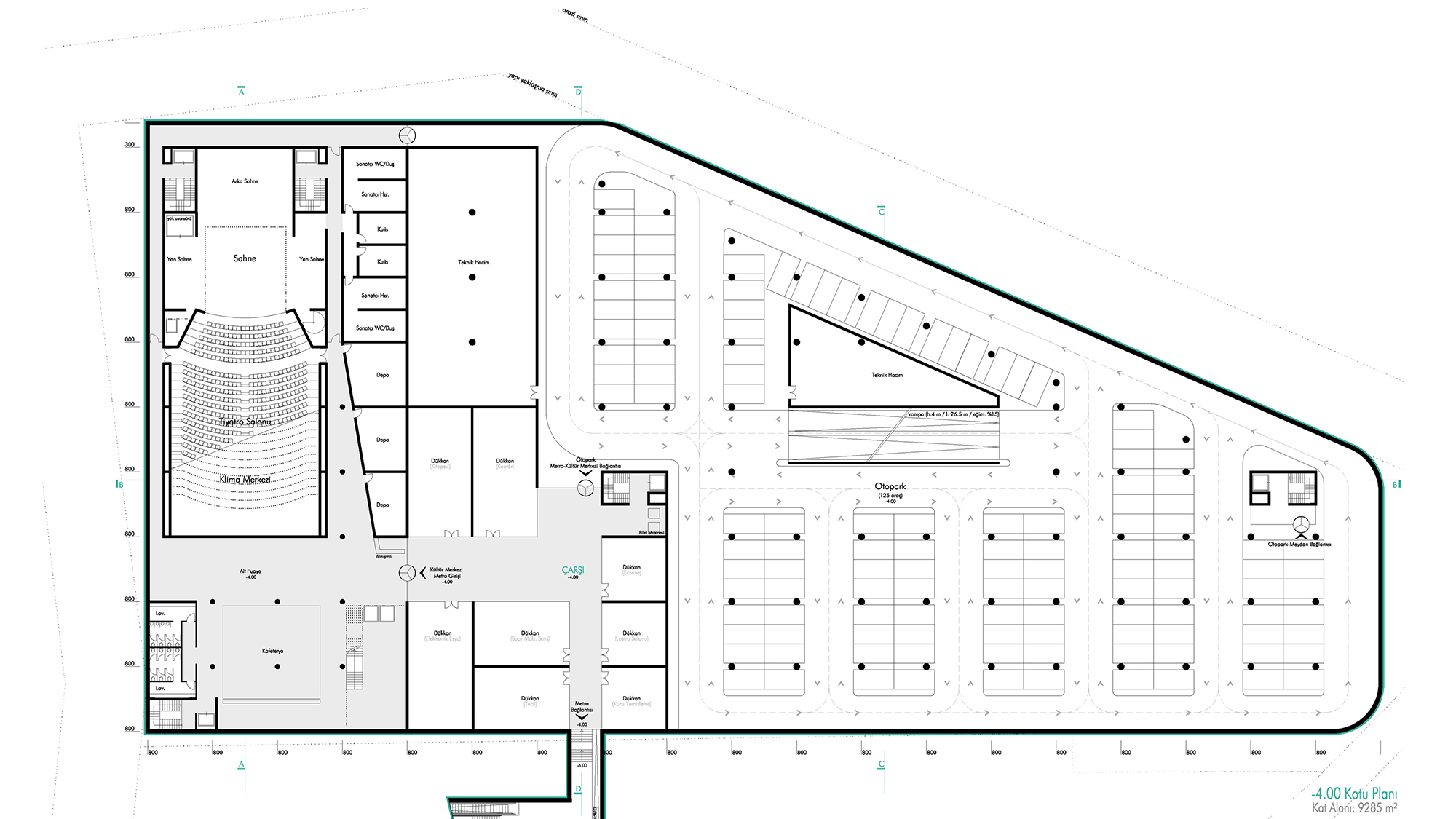
Resmi Orjinal Boyutunda Göster
2. Ödül, Evka 3 Sosyal Merkez ve Aktarma İstasyonu Yarışması
Project Location: İzmir, Bornova
Project Office: SCRA Mimarlık
Project Type: Cultural Center, Station / Stop
Proje Tipi Grubu: 2. Ödül
Tasarım Ekibi: Ramazan Avcı, Seden Cinasal Avcı
Consultant: Elvan Ender, Mehmet Zafer Kınacı
Yardımcı: Merve Özduman, Mert Doğaray, Nil Özkır, Yusra Ekin, Mustafa Can