50/53
Paylaş
Resmi Orjinal Boyutunda Göster
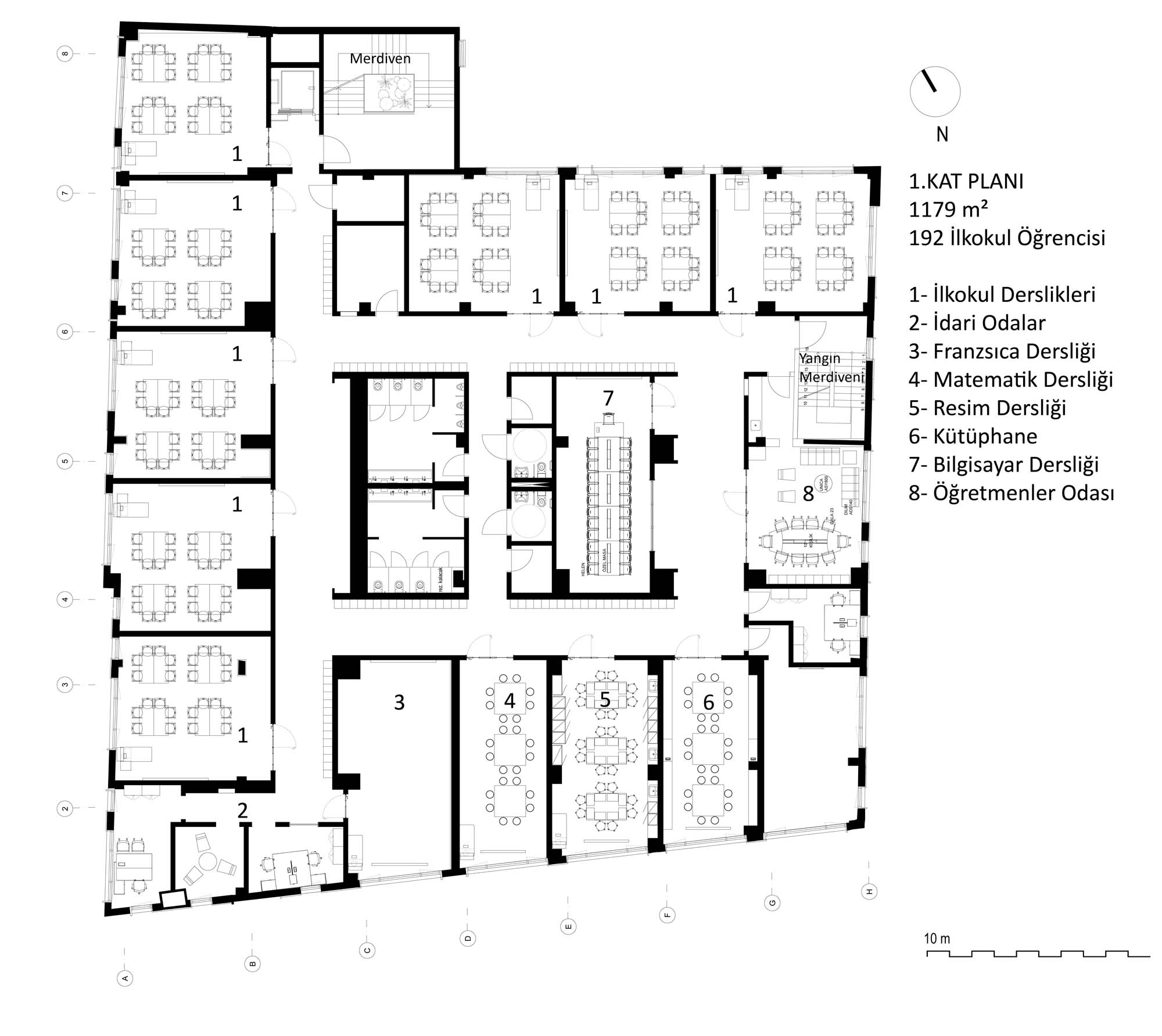
Yeni Nesil 2000 Okulları
Proje Yeri: Sarıyer, İstanbul
Proje Ofisi: Kreatif Mimarlık
Proje Tipi: İlkokul
Proje Tipi Grubu: Eğitim
Tasarım Ekibi: Aydan Volkan, Selim Cengiç, Onur Arat, Dila Sel
İşveren: Yeni Nesil Okulları
Fotoğraf: Yercekim Mimari Fotograf
Proje Başlangıç Yılı: 2014
Proje Bitiş Yılı: 2014
İnşaat Başlangıç Yılı: 2015
İnşaat Bitiş Yılı: 2016
Toplam İnşaat Alanı: 5,100 m²