52/53
Paylaş
Resmi Orjinal Boyutunda Göster
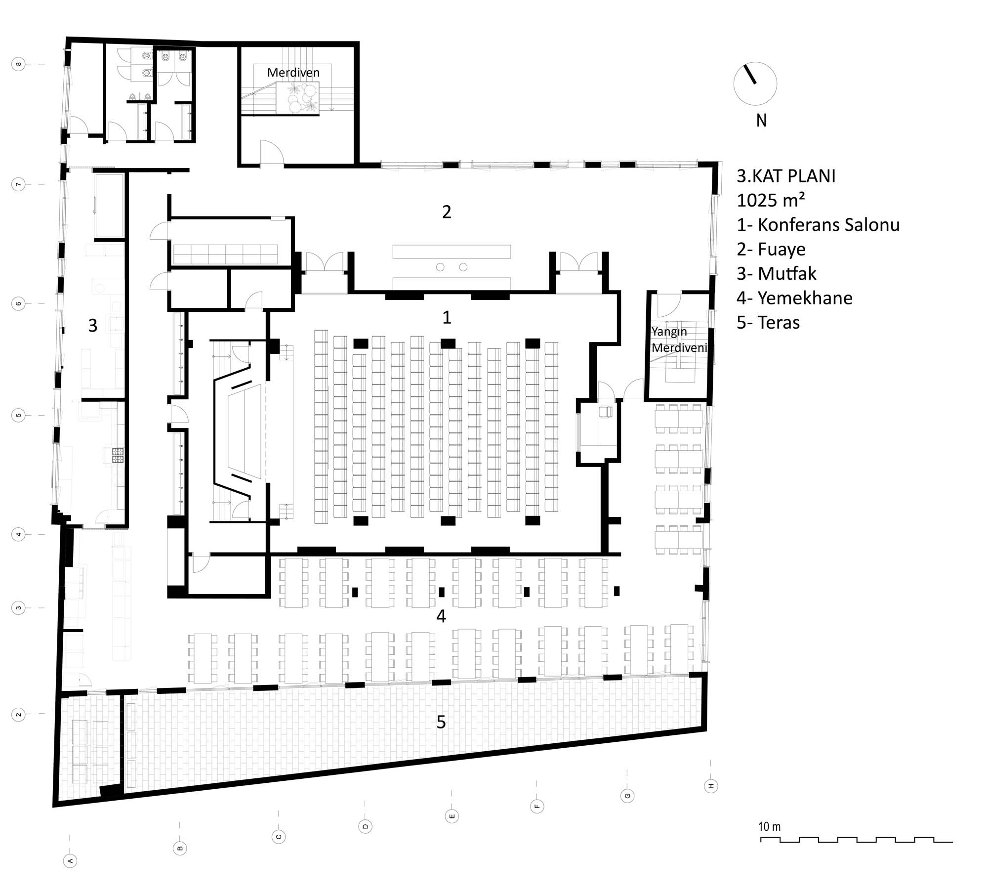
Yeni Nesil 2000 Okulları
Project Location: Sarıyer, İstanbul
Project Office: Kreatif Mimarlık
Project Type: İlkokul
Proje Tipi Grubu: Eğitim
Tasarım Ekibi: Aydan Volkan, Selim Cengiç, Onur Arat, Dila Sel
Employer: Yeni Nesil Okulları
Photography: Yercekim Mimari Fotograf
Project Start Date: 2014
Project End Date: 2014
Construction Start Date: 2015
Construction End Date: 2016
Total Construction Area: 5,100 m²