35/38
Paylaş
Resmi Orjinal Boyutunda Göster
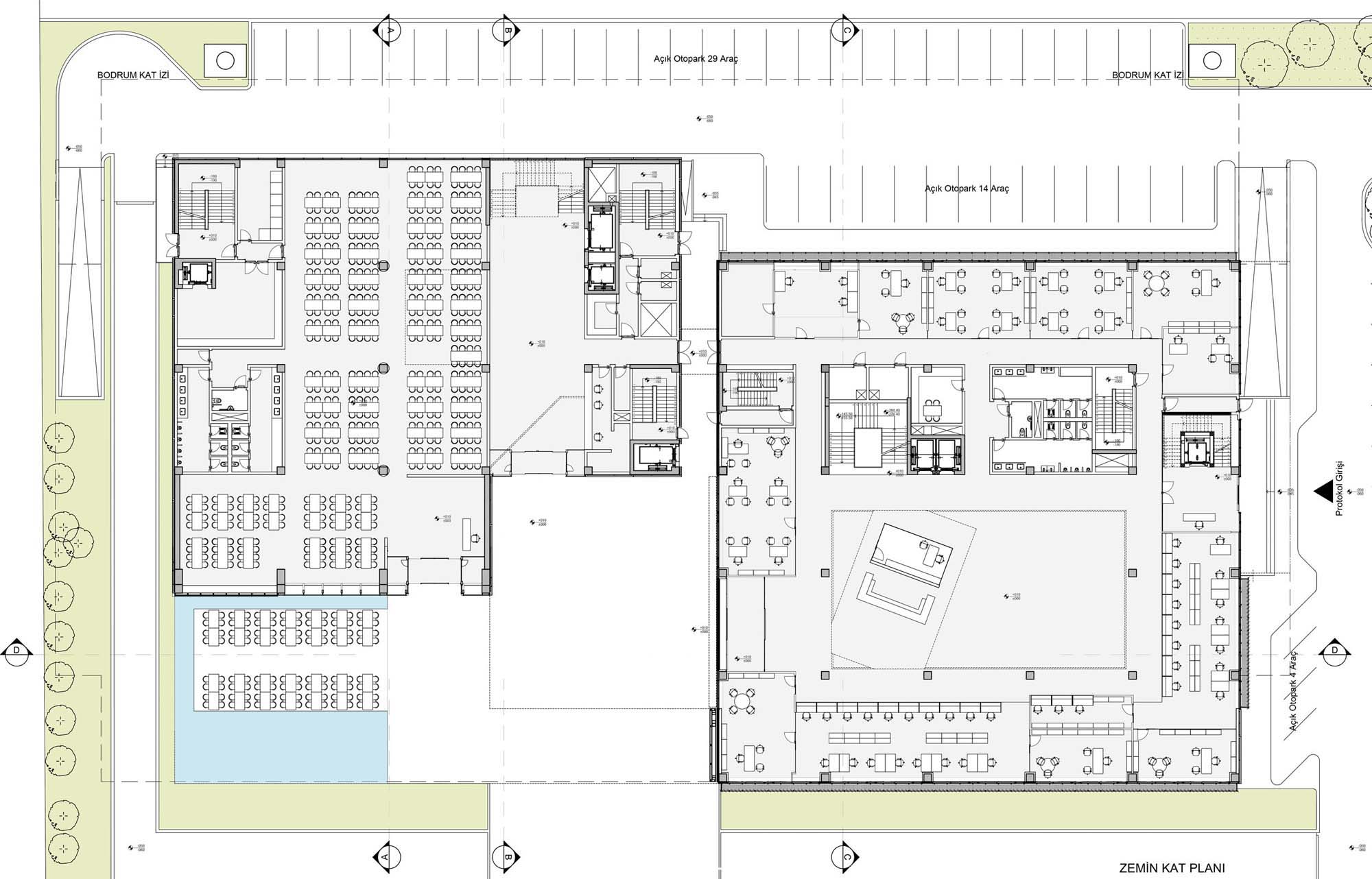
Kayseri Ticaret Odası Hizmet Binası
Project Location: Kayseri, Kocasinan
Project Office: A2 Tasarım
Project Type: Offices
Proje Tipi Grubu: Commercial
Tasarım Ekibi: Aydın Avunduk, Arman Yaşa, Özgür Dağlar
Employer: Kayseri Ticaret Odası
Ana Yüklenici: Aydın İnşaat & Elektrik
Lighting Project: Merve Dönmez Yaşa
Structural Project: Uzunyapı Mühendislik
Mechanical Project: des-Art Proje
Electrical Project: RST Mühendislik
Akustik Projesi: Talayman Akustik
Photography: Alp Eren, ALTKAT Architectural Photography
Project Start Date: 2014
Project End Date: 2014
Construction Start Date: 2015
Construction End Date: 2017
Building Plot Area: 14,500 m2
Total Construction Area: 18,007 m²