38/38
Paylaş
Resmi Orjinal Boyutunda Göster
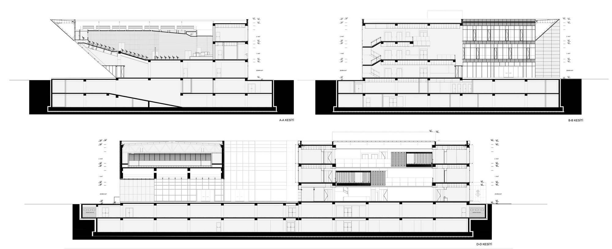
Kayseri Ticaret Odası Hizmet Binası
Proje Yeri: Kayseri, Kocasinan
Proje Ofisi: A2 Tasarım
Proje Tipi: Ofis
Proje Tipi Grubu: Ticari
Tasarım Ekibi: Aydın Avunduk, Arman Yaşa, Özgür Dağlar
İşveren: Kayseri Ticaret Odası
Ana Yüklenici: Aydın İnşaat & Elektrik
Aydınlatma Projesi: Merve Dönmez Yaşa
Statik Projesi: Uzunyapı Mühendislik
Mekanik Projesi: des-Art Proje
Elektrik Projesi: RST Mühendislik
Akustik Projesi: Talayman Akustik
Fotoğraf: Alp Eren, ALTKAT Architectural Photography
Proje Başlangıç Yılı: 2014
Proje Bitiş Yılı: 2014
İnşaat Başlangıç Yılı: 2015
İnşaat Bitiş Yılı: 2017
Arsa Alanı: 14,500 m2
Toplam İnşaat Alanı: 18,007 m²