24/28
Paylaş
Resmi Orjinal Boyutunda Göster
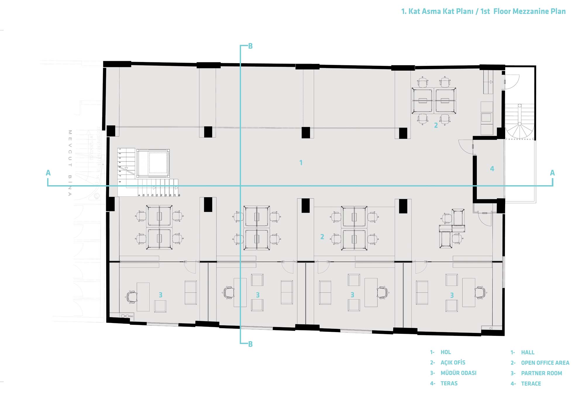
Moroğlu Arseven Avukatlık Ortaklığı Ofisi
Proje Yeri: İstanbul, Şişli
Proje Ofisi: ERA Şehircilik Mimarlık
Proje Tipi: Ofis
Proje Tipi Grubu: Ticari
Tasarım Ekibi: Ali Hızıroğlu, İrfan Ertiş, Joao Cruz Neves, Ali Tiner, Yeşim Çınar
İşveren: Moroğlu Arseven Avukatlık Ortaklığı
Uygulama Projesi: Oğuz Bayazıt Mimarlık
Fotoğraf: Yercekim Mimari Fotograf
Proje Başlangıç Yılı: 2015
Proje Bitiş Yılı: 2016
İnşaat Başlangıç Yılı: 2015
İnşaat Bitiş Yılı: 2017
Toplam İnşaat Alanı: 2,100 m2