25/28
Paylaş
Resmi Orjinal Boyutunda Göster
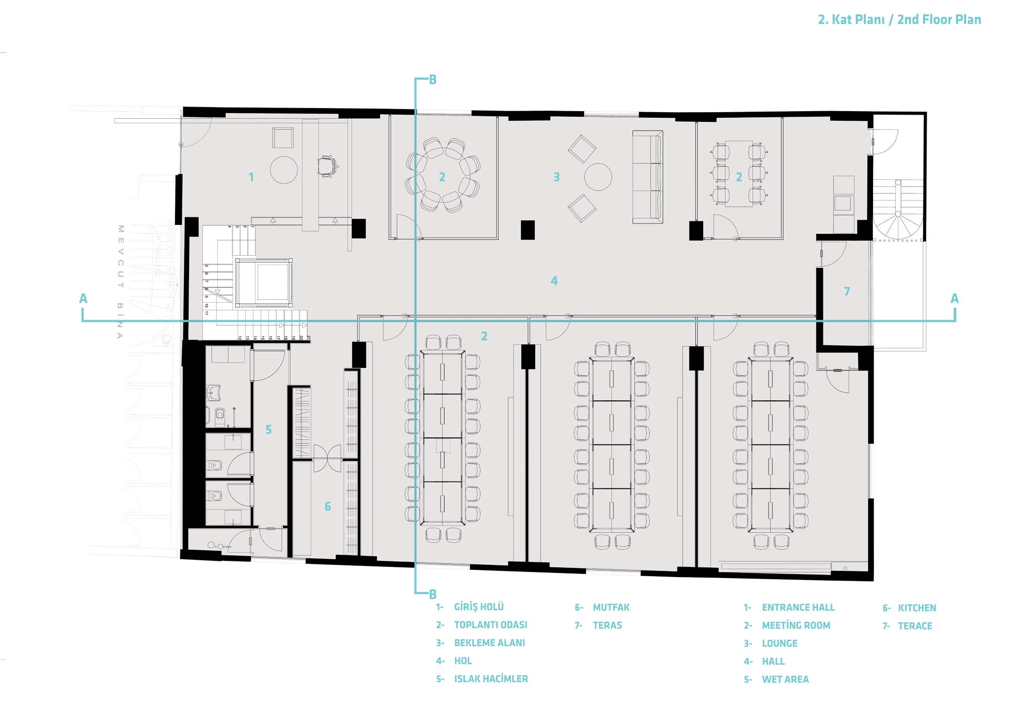
Moroğlu Arseven Avukatlık Ortaklığı Ofisi
Project Location: İstanbul, Şişli
Project Office: ERA Şehircilik Mimarlık
Project Type: Offices
Proje Tipi Grubu: Commercial
Tasarım Ekibi: Ali Hızıroğlu, İrfan Ertiş, Joao Cruz Neves, Ali Tiner, Yeşim Çınar
Employer: Moroğlu Arseven Avukatlık Ortaklığı
Construction Drawings: Oğuz Bayazıt Mimarlık
Photography: Yercekim Mimari Fotograf
Project Start Date: 2015
Project End Date: 2016
Construction Start Date: 2015
Construction End Date: 2017
Total Construction Area: 2,100 m2