7/19
Paylaş
Resmi Orjinal Boyutunda Göster
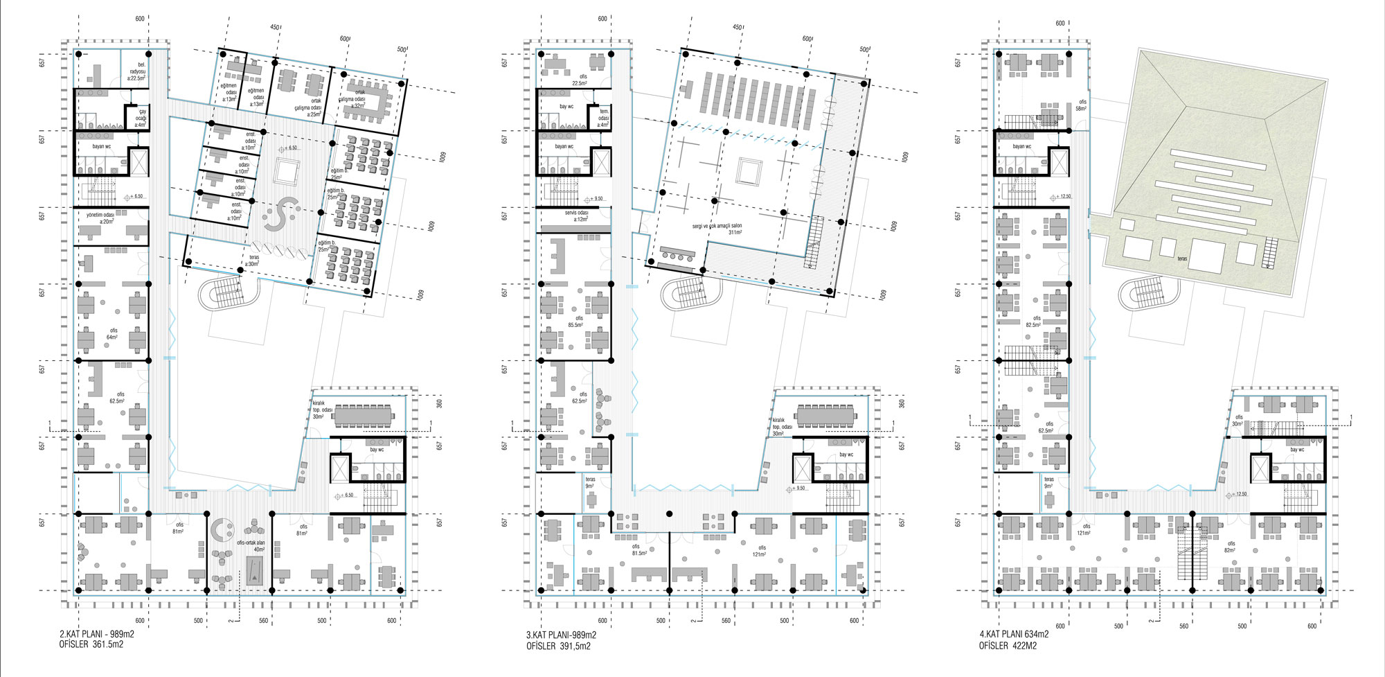
Eşdeğer Mansiyon, Merzifon Belediyesi İş ve Yaşam Merkezi Mimari Proje Yarışması
Project Location: Merzifon, Amasya
Project Office: Eyusta Tasarım ve Mimarlık Atölyesi
Project Type: Offices, Other Recreational Buildinds
Proje Tipi Grubu: Eşdeğer Mansiyon
Tasarım Ekibi: İbrahim Eyüp, Hakan Deniz Özdemir, Olcay Ovalı Eyüp, Hakan Çatalkaya