8/19
Paylaş
Resmi Orjinal Boyutunda Göster
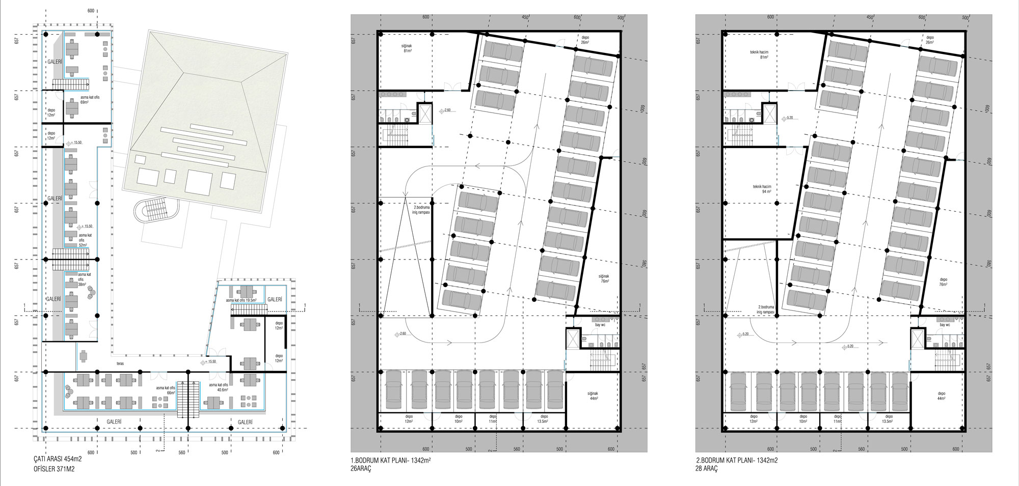
Eşdeğer Mansiyon, Merzifon Belediyesi İş ve Yaşam Merkezi Mimari Proje Yarışması
Proje Yeri: Merzifon, Amasya
Proje Ofisi: Eyusta Tasarım ve Mimarlık Atölyesi
Proje Tipi: Ofis, Diğer Rekreasyon Yapıları
Proje Tipi Grubu: Eşdeğer Mansiyon
Tasarım Ekibi: İbrahim Eyüp, Hakan Deniz Özdemir, Olcay Ovalı Eyüp, Hakan Çatalkaya