12/26
Paylaş
Resmi Orjinal Boyutunda Göster
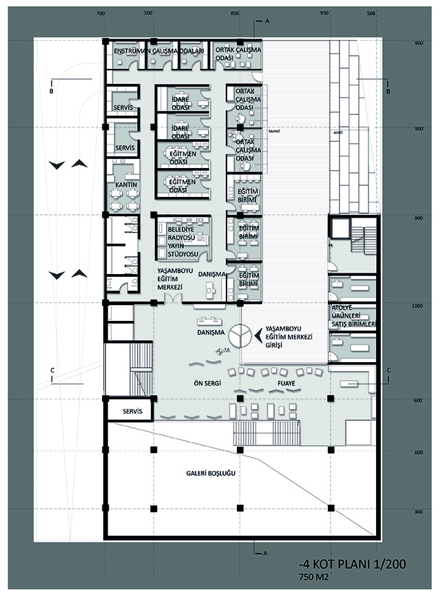
Katılımcı, Merzifon Belediyesi İş ve Yaşam Merkezi Mimari Proje Yarışması
Project Location: Amasya, Merzifon
Project Type: Offices, Other Recreational Buildinds
Proje Tipi Grubu: Katılımcı
Tasarım Ekibi: Erhan Özdoğan, Gökçe Demirpençe, Pınar Akdoğan
Yardımcı: Abdulkadir Keleş, Aylin Özkan, Ayşe Ece Dayıbaş, Ziya Damlarkaya