23/26
Paylaş
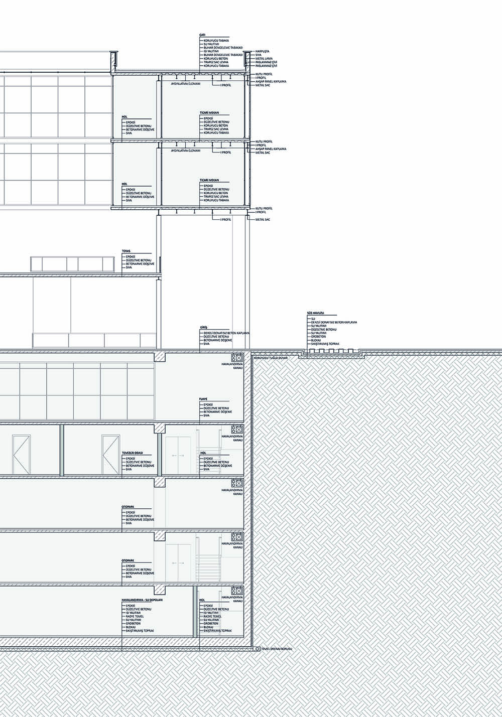
Resmi Orjinal Boyutunda Göster
Katılımcı, Merzifon Belediyesi İş ve Yaşam Merkezi Mimari Proje Yarışması
Proje Yeri: Amasya, Merzifon
Proje Tipi: Ofis, Diğer Rekreasyon Yapıları
Proje Tipi Grubu: Katılımcı
Tasarım Ekibi: Erhan Özdoğan, Gökçe Demirpençe, Pınar Akdoğan
Yardımcı: Abdulkadir Keleş, Aylin Özkan, Ayşe Ece Dayıbaş, Ziya Damlarkaya