14/21
Paylaş
Resmi Orjinal Boyutunda Göster
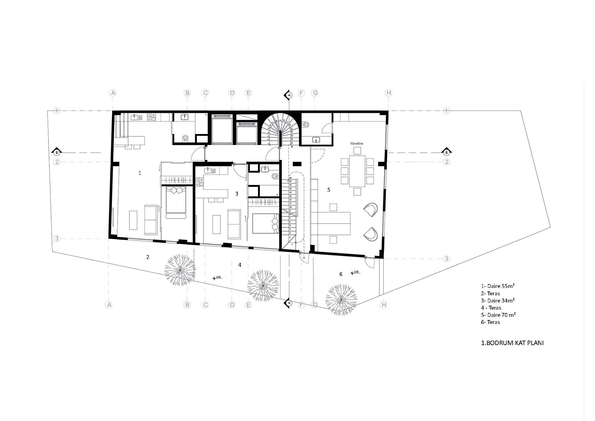
Seyrantepe Öğrenci Yurdu
Project Location: İstanbul, Kağıthane
Project Office: Buda Mimarlık
Project Type: Dormitory / Guesthouse
Proje Tipi Grubu: Eğitim
Tasarım Ekibi: Burak Pelenk, Tuna Torun, Damla İçyer, Eda Yazkurt Pelenk
Consultant: Kerem Erginoğlu
Projcet Manager: Burak Pelenk
Project Start Date: 2015
Project End Date: 2017
Construction Start Date: 2016, 2017
Building Plot Area: 404 m²
Total Construction Area: 1,703 m²