17/21
Paylaş
Resmi Orjinal Boyutunda Göster
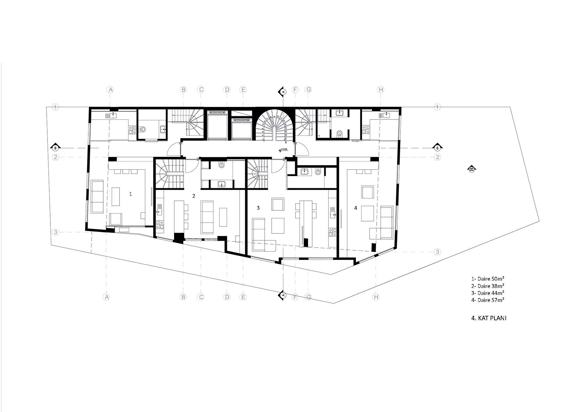
Seyrantepe Öğrenci Yurdu
Proje Yeri: İstanbul, Kağıthane
Proje Ofisi: Buda Mimarlık
Proje Tipi: Yurt / Konukevi
Proje Tipi Grubu: Eğitim
Tasarım Ekibi: Burak Pelenk, Tuna Torun, Damla İçyer, Eda Yazkurt Pelenk
Danışman: Kerem Erginoğlu
Proje Yöneticisi: Burak Pelenk
Proje Başlangıç Yılı: 2015
Proje Bitiş Yılı: 2017
İnşaat Başlangıç Yılı: 2016, 2017
Arsa Alanı: 404 m²
Toplam İnşaat Alanı: 1,703 m²