27/38
Paylaş
Resmi Orjinal Boyutunda Göster
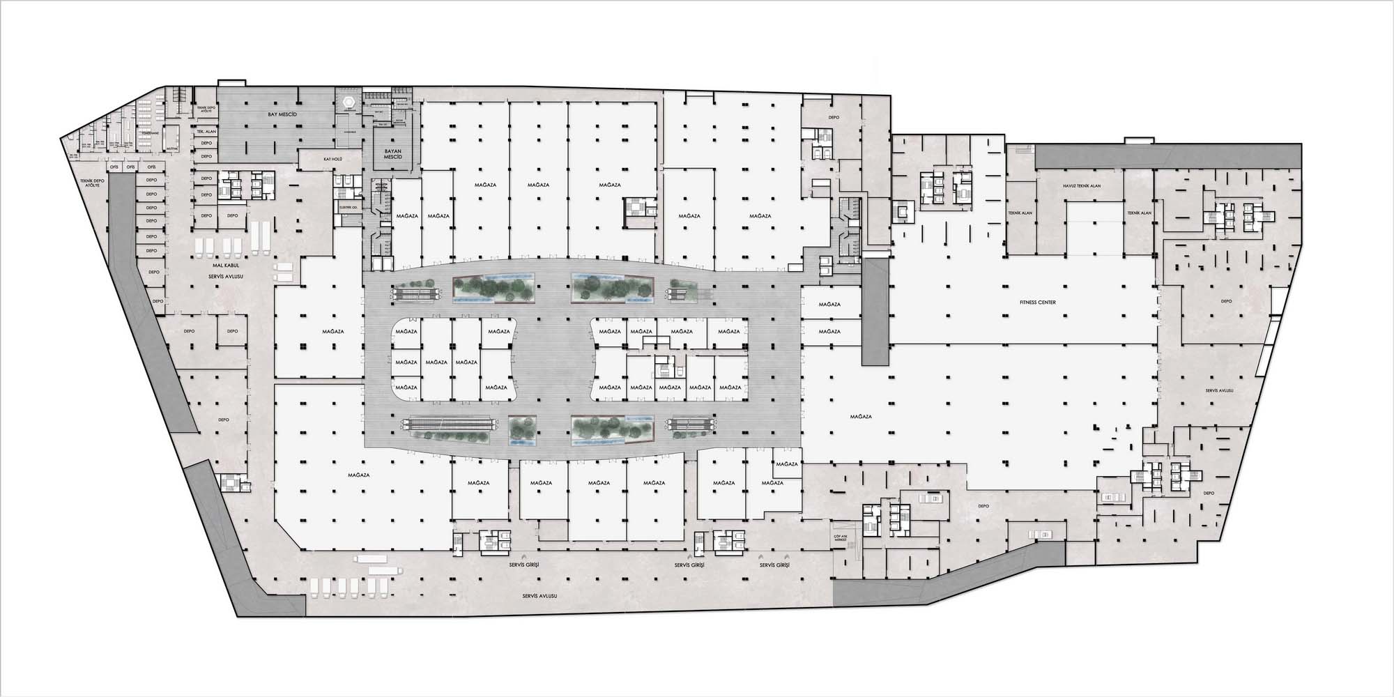
Metromall AVM
Proje Yeri: Ankara, Etimesgut
Proje Ofisi: MSA Mimarlık
Proje Tipi: Alışveriş Merkezi
Proje Tipi Grubu: Ticari
Tasarım Ekibi: Mustafa Selçuk, Erhan Tozkoparan, Aykut Yıldırım, Cansu Ergül, Murat Şenel, Muhammed Tarık Mermer, Sefa Dağ, Sinem Tozlu
İşveren: Söğüt İnşaat
Ana Yüklenici: Söğüt İnşaat
Peyzaj Mimarlığı: MSA Mimarlık, Engin Gürcan
İç Mekan Projesi: MSA Mimarlık, İpbüken Mimarlık
Statik Projesi: Tekta Proje
Mekanik Projesi: Yazman Mühendislik
Elektrik Projesi: Akay Mühendislik
Proje Başlangıç Yılı: 2013
Proje Bitiş Yılı: 2014
İnşaat Başlangıç Yılı: 2014
İnşaat Bitiş Yılı: 2017
Arsa Alanı: 50,000 m2
Toplam İnşaat Alanı: 420,000 m2