29/38
Paylaş
Resmi Orjinal Boyutunda Göster
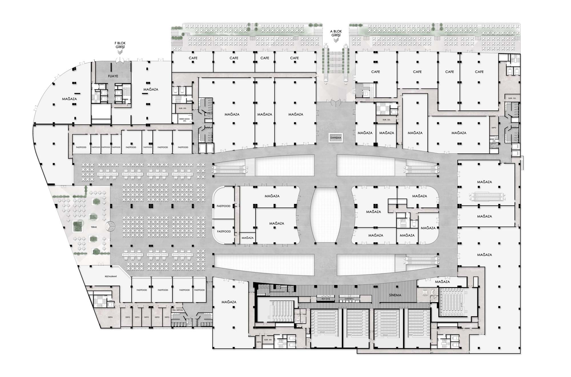
Metromall AVM
Project Location: Ankara, Etimesgut
Project Office: MSA Mimarlık
Project Type: Shopping Mall
Proje Tipi Grubu: Commercial
Tasarım Ekibi: Mustafa Selçuk, Erhan Tozkoparan, Aykut Yıldırım, Cansu Ergül, Murat Şenel, Muhammed Tarık Mermer, Sefa Dağ, Sinem Tozlu
Employer: Söğüt İnşaat
Ana Yüklenici: Söğüt İnşaat
Peyzaj Mimarlığı: MSA Mimarlık, Engin Gürcan
Interior Architecture: MSA Mimarlık, İpbüken Mimarlık
Structural Project: Tekta Proje
Mechanical Project: Yazman Mühendislik
Electrical Project: Akay Mühendislik
Project Start Date: 2013
Project End Date: 2014
Construction Start Date: 2014
Construction End Date: 2017
Building Plot Area: 50,000 m2
Total Construction Area: 420,000 m2