11/19
Paylaş
Resmi Orjinal Boyutunda Göster
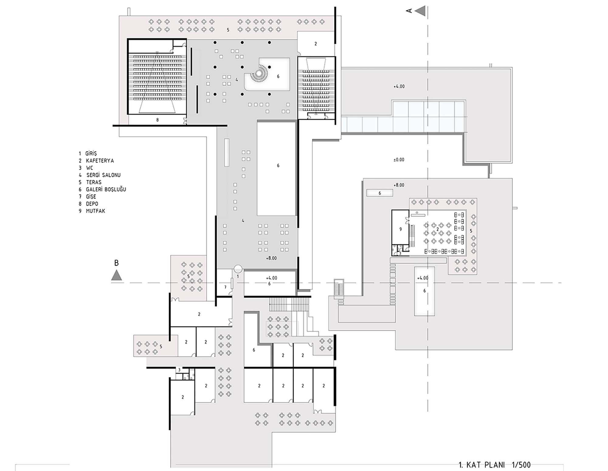
Bandırma Onyedi Eylül Üniversitesi Öğrenci Yaşam Merkezi
Proje Yeri: Bandırma
Proje Ofisi: BEOFFICE
Proje Tipi: Yüksek Öğretim Yapısı
Proje Tipi Grubu: Eğitim
Tasarım Ekibi: Süleyman Yıldız, Rıfat Yılmaz, Burcu Sevinç, Hilmi Serkan Yüzbaşı
İşveren: Bandırma Onyedi Eylül Üniversitesi
Peyzaj Mimarlığı: caps.office
Aydınlatma Projesi: Studio Lighting Design
Statik Projesi: AGM Mühendislik
Mekanik Projesi: ANKA Proje Danışmanlık
Elektrik Projesi: ANKA Proje Danışmanlık
Altyapı Projesi: AGM Mühendislik
Akustik Projesi: Mezzo Studio
Proje Başlangıç Yılı: 2018