9/19
Paylaş
Resmi Orjinal Boyutunda Göster
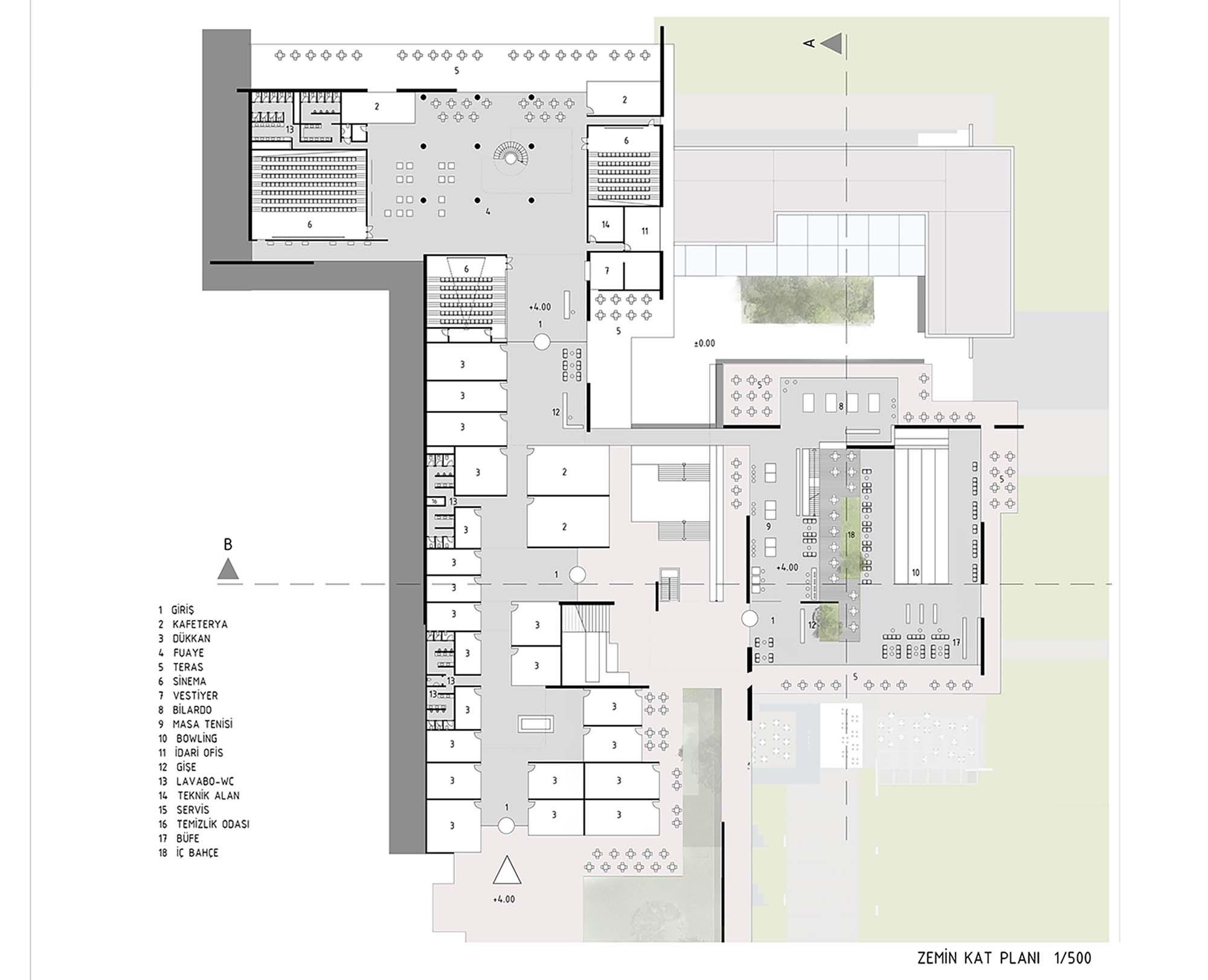
Bandırma Onyedi Eylül Üniversitesi Öğrenci Yaşam Merkezi
Project Location: Bandırma
Project Office: BEOFFICE
Project Type: Higher Education Building
Proje Tipi Grubu: Eğitim
Tasarım Ekibi: Süleyman Yıldız, Rıfat Yılmaz, Burcu Sevinç, Hilmi Serkan Yüzbaşı
Employer: Bandırma Onyedi Eylül Üniversitesi
Peyzaj Mimarlığı: caps.office
Lighting Project: Studio Lighting Design
Structural Project: AGM Mühendislik
Mechanical Project: ANKA Proje Danışmanlık
Electrical Project: ANKA Proje Danışmanlık
Altyapı Projesi: AGM Mühendislik
Akustik Projesi: Mezzo Studio
Project Start Date: 2018