15/20
Paylaş
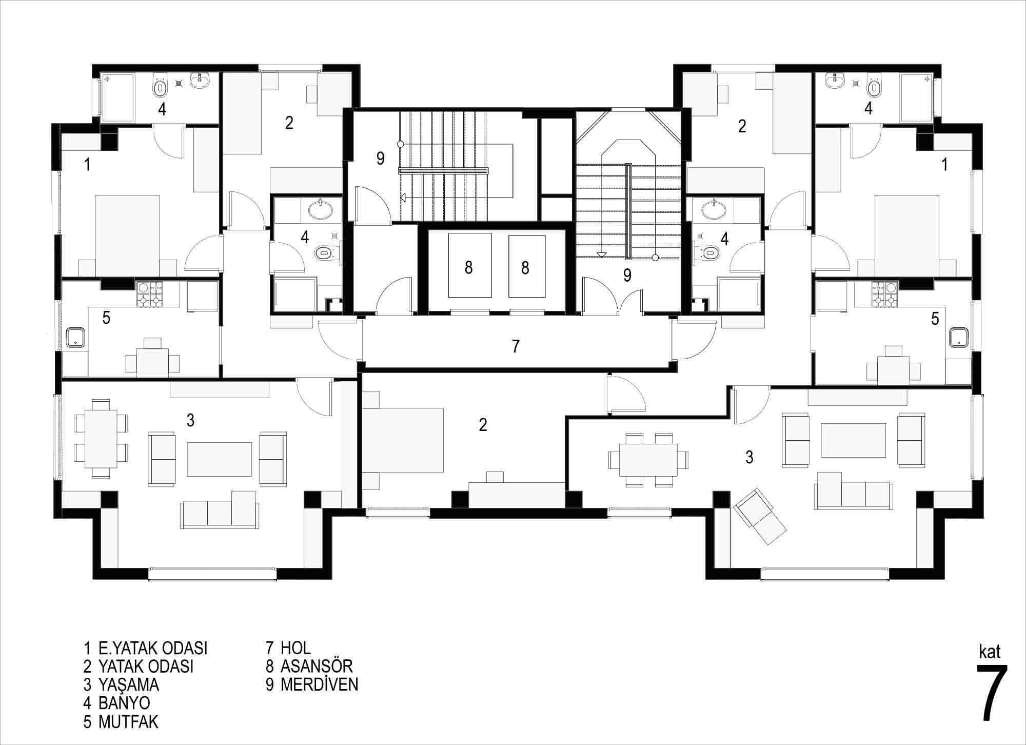
Resmi Orjinal Boyutunda Göster
Palmiye 360
Project Location: Kadıköy, İstanbul
Project Office: Yapı 360
Project Type: Apartment
Proje Tipi Grubu: Konut
Tasarım Ekibi: Melis Aydın, Ertuğrul Aydın
Employer: Yapı 360
Yardımcı: Ceyda Karademir, Göktuğ Kaymakçalan, Gülperi Aldıç, Itır Kesen, Kenan Baydaroğlu, Özge Kal, Serli Hobiloğlu, Süleyman Bayraktar
Ana Yüklenici: Yapı 360
Structural Project: Volkan Mühendislik
Mechanical Project: Tümtes
Electrical Project: Tümtes
Construction Site Manager: Ertuğrul Aydın
Project Start Date: 2014
Project End Date: 2014
Construction Start Date: 2015
Construction End Date: 2017
Building Plot Area: 660 m²
Total Construction Area: 2,100 m2