17/20
Paylaş
Resmi Orjinal Boyutunda Göster
Palmiye 360
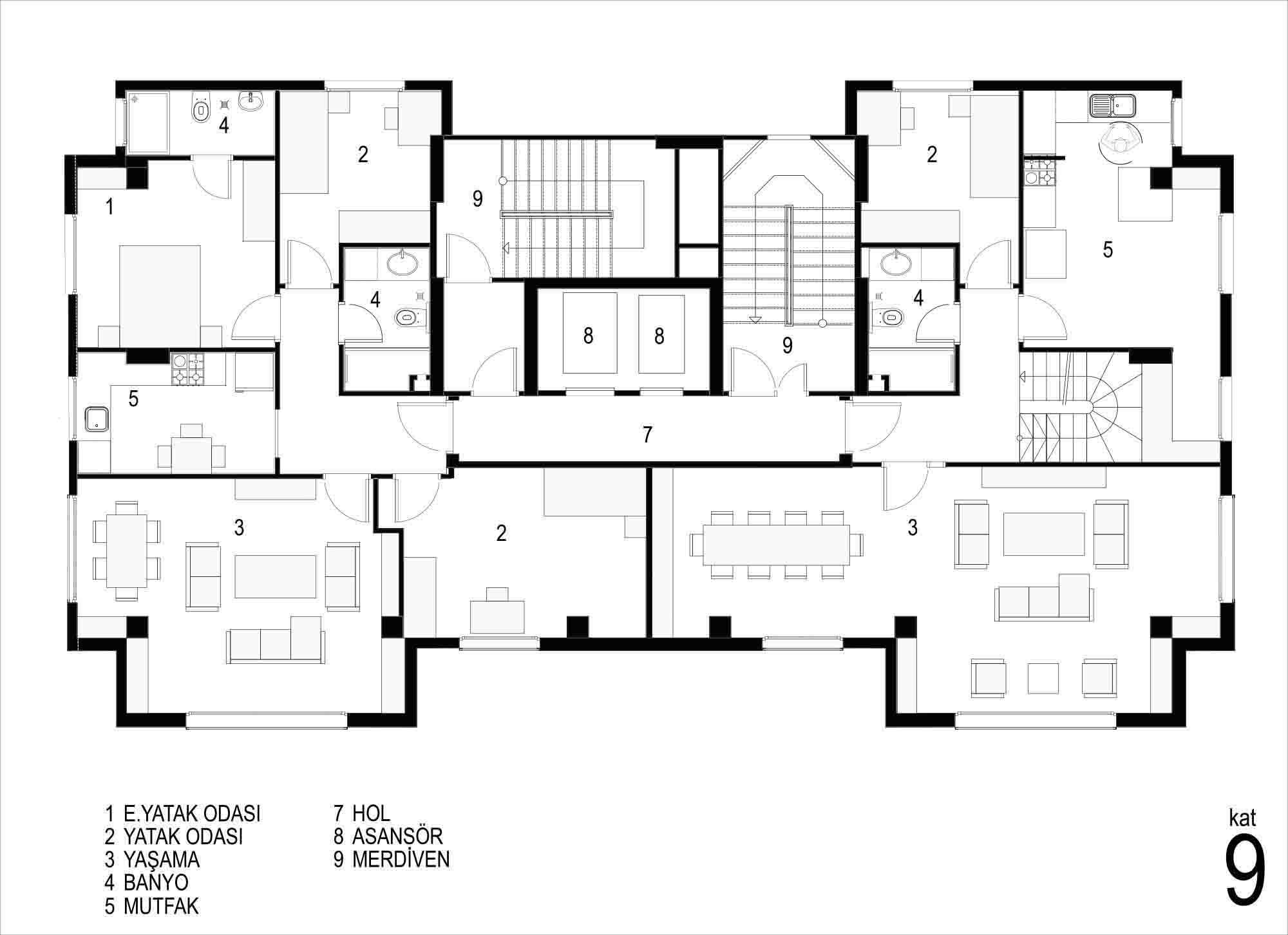
Proje Yeri: Kadıköy, İstanbul
Proje Ofisi: Yapı 360
Proje Tipi: Apartman
Proje Tipi Grubu: Konut
Tasarım Ekibi: Melis Aydın, Ertuğrul Aydın
İşveren: Yapı 360
Yardımcı: Ceyda Karademir, Göktuğ Kaymakçalan, Gülperi Aldıç, Itır Kesen, Kenan Baydaroğlu, Özge Kal, Serli Hobiloğlu, Süleyman Bayraktar
Ana Yüklenici: Yapı 360
Statik Projesi: Volkan Mühendislik
Mekanik Projesi: Tümtes
Elektrik Projesi: Tümtes
Şantiye Yöneticisi: Ertuğrul Aydın
Proje Başlangıç Yılı: 2014
Proje Bitiş Yılı: 2014
İnşaat Başlangıç Yılı: 2015
İnşaat Bitiş Yılı: 2017
Arsa Alanı: 660 m²
Toplam İnşaat Alanı: 2,100 m2