10/20
Paylaş
Resmi Orjinal Boyutunda Göster
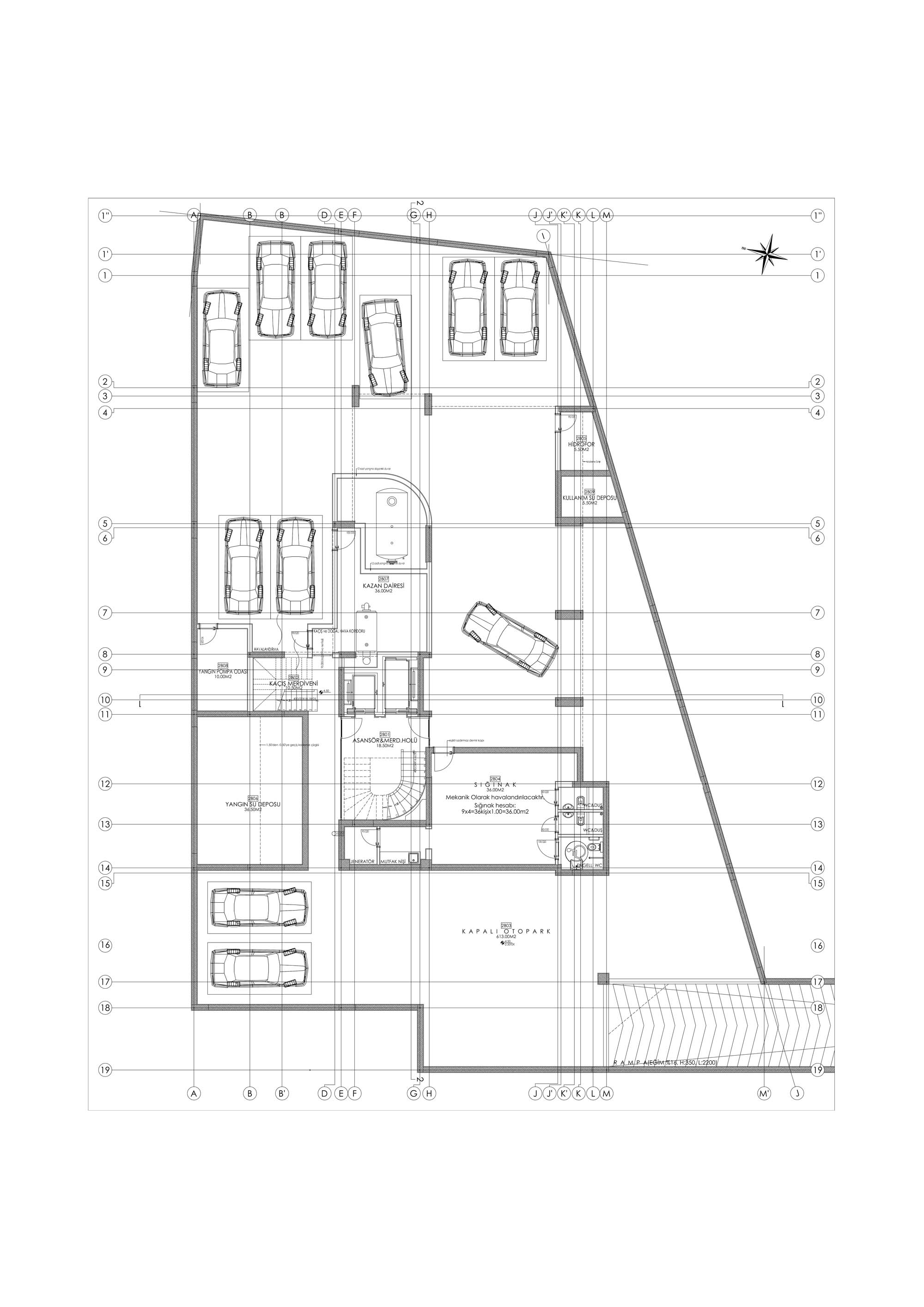
Alara Loft Evleri
Proje Yeri: Muratpaşa, Antalya
Proje Ofisi: Altındal Mimarlık
Proje Tipi: Apartman
Proje Tipi Grubu: Konut
Tasarım Ekibi: Şevket Altındal
İşveren: Recai Kırmızıtaş
Yardımcı: Erhan Yılmaz
Ana Yüklenici: Kırmızıtaş Otomotiv
Peyzaj Mimarlığı: Zübeyde Özsu Peyzaj Tasarım Atölyesi
İç Mekan Projesi: İra Mimarlık
Proje Yöneticisi: Şevket Altındal
Statik Projesi: Akıncı Mühendislik
Mekanik Projesi: TSO Mühendislik, Taner Tazegül
Elektrik Projesi: Hikmet Demir
Tesisat Projesi: TSO Mühendislik, Taner Tazegül
Çelik Projesi: Akıncı Mühendislik
Proje Başlangıç Yılı: 2011
Proje Bitiş Yılı: 2011
İnşaat Başlangıç Yılı: 2011
İnşaat Bitiş Yılı: 2017
Arsa Alanı: 2,739 m2
Toplam İnşaat Alanı: 4,400 m2