14/20
Paylaş
Resmi Orjinal Boyutunda Göster
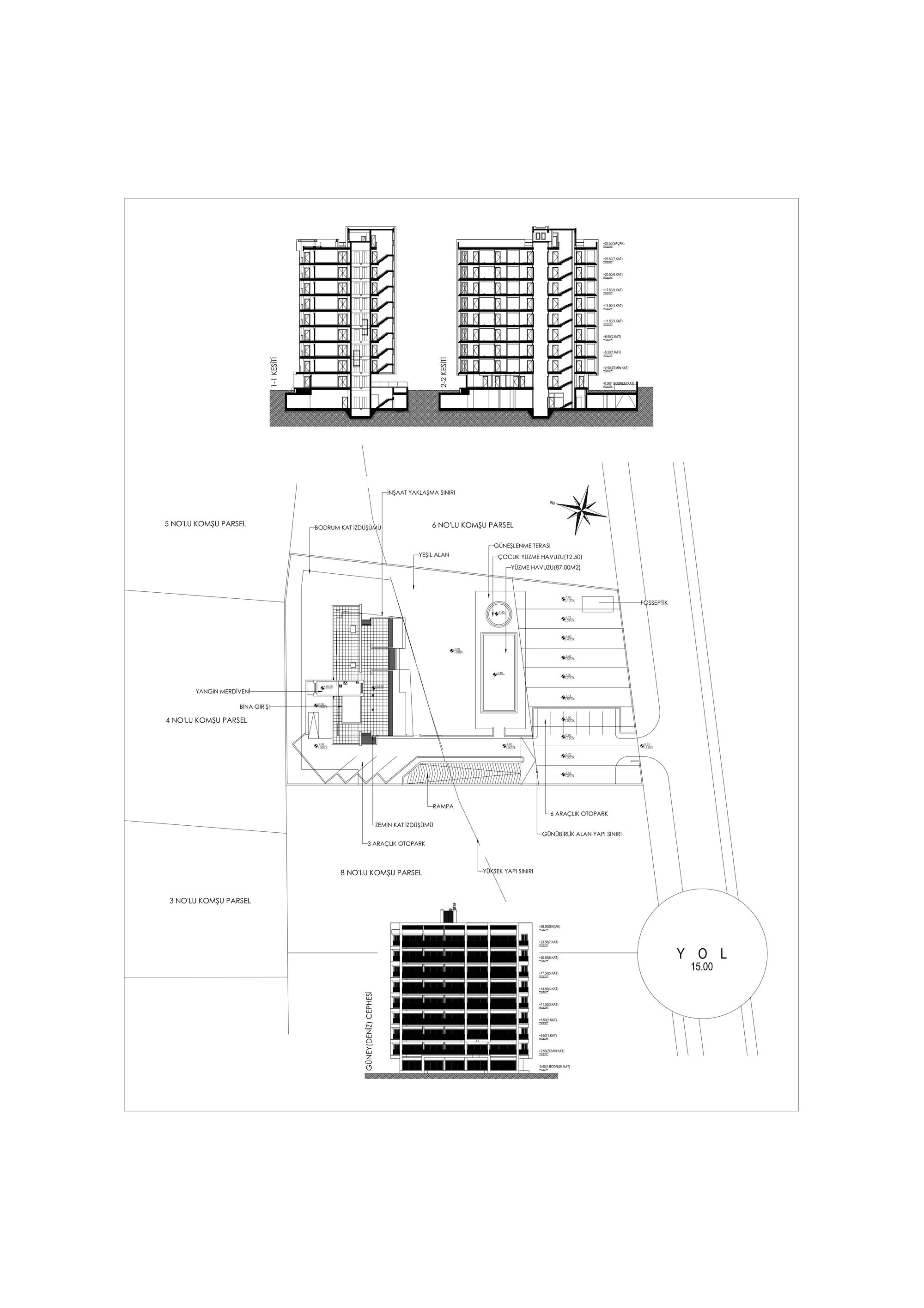
Alara Loft Evleri
Project Location: Muratpaşa, Antalya
Project Office: Altındal Mimarlık
Project Type: Apartment
Proje Tipi Grubu: Konut
Tasarım Ekibi: Şevket Altındal
Employer: Recai Kırmızıtaş
Yardımcı: Erhan Yılmaz
Ana Yüklenici: Kırmızıtaş Otomotiv
Peyzaj Mimarlığı: Zübeyde Özsu Peyzaj Tasarım Atölyesi
Interior Architecture: İra Mimarlık
Projcet Manager: Şevket Altındal
Structural Project: Akıncı Mühendislik
Mechanical Project: TSO Mühendislik, Taner Tazegül
Electrical Project: Hikmet Demir
Plumbing Project: TSO Mühendislik, Taner Tazegül
Çelik Projesi: Akıncı Mühendislik
Project Start Date: 2011
Project End Date: 2011
Construction Start Date: 2011
Construction End Date: 2017
Building Plot Area: 2,739 m2
Total Construction Area: 4,400 m2