20/43
Paylaş
Resmi Orjinal Boyutunda Göster
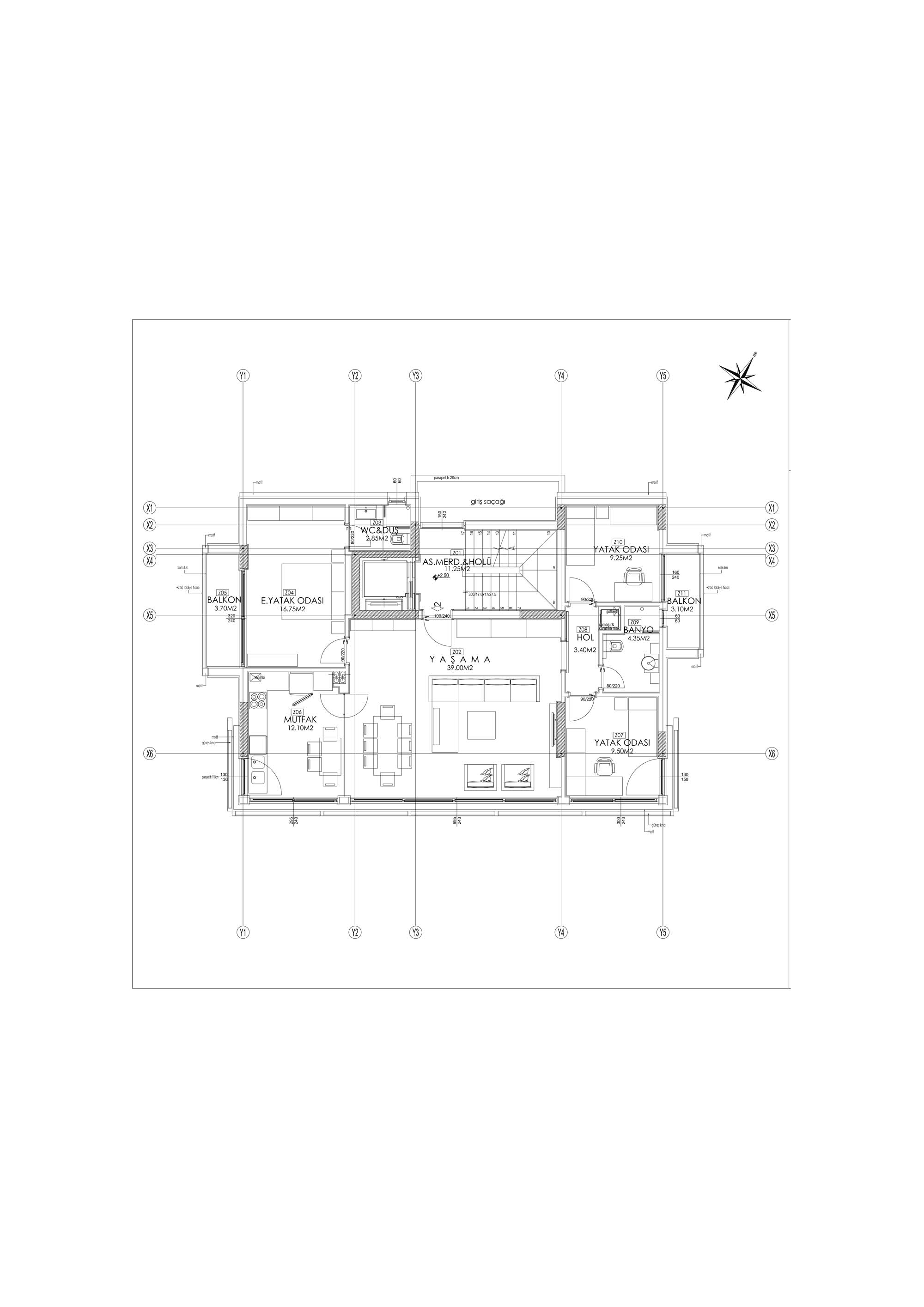
Leb-i Derya
Proje Yeri: Antalya, Muratpaşa
Proje Ofisi: Altındal Mimarlık
Proje Tipi: Konut Sitesi / Grubu
Proje Tipi Grubu: Konut
Tasarım Ekibi: Şevket Altındal
İşveren: Zeydan& Co
Yardımcı: Melis Akıncı Geygel
Ana Yüklenici: Zeydan& Co
Peyzaj Mimarlığı: Tagatelier, Aslı Özbilen
Proje Yöneticisi: Şevket Altındal
Statik Projesi: Gürhan Mandacı
Mekanik Projesi: Nadir Gencel
Elektrik Projesi: Dlk Elektrik
Tesisat Projesi: Nadir Gencel
Çelik Projesi: Gürhan Mandacı
Proje Başlangıç Yılı: 2015
Proje Bitiş Yılı: 2015
İnşaat Başlangıç Yılı: 2015
İnşaat Bitiş Yılı: 2017
Arsa Alanı: 1,470 m2​
Toplam İnşaat Alanı: 2,700 m²