21/43
Paylaş
Resmi Orjinal Boyutunda Göster
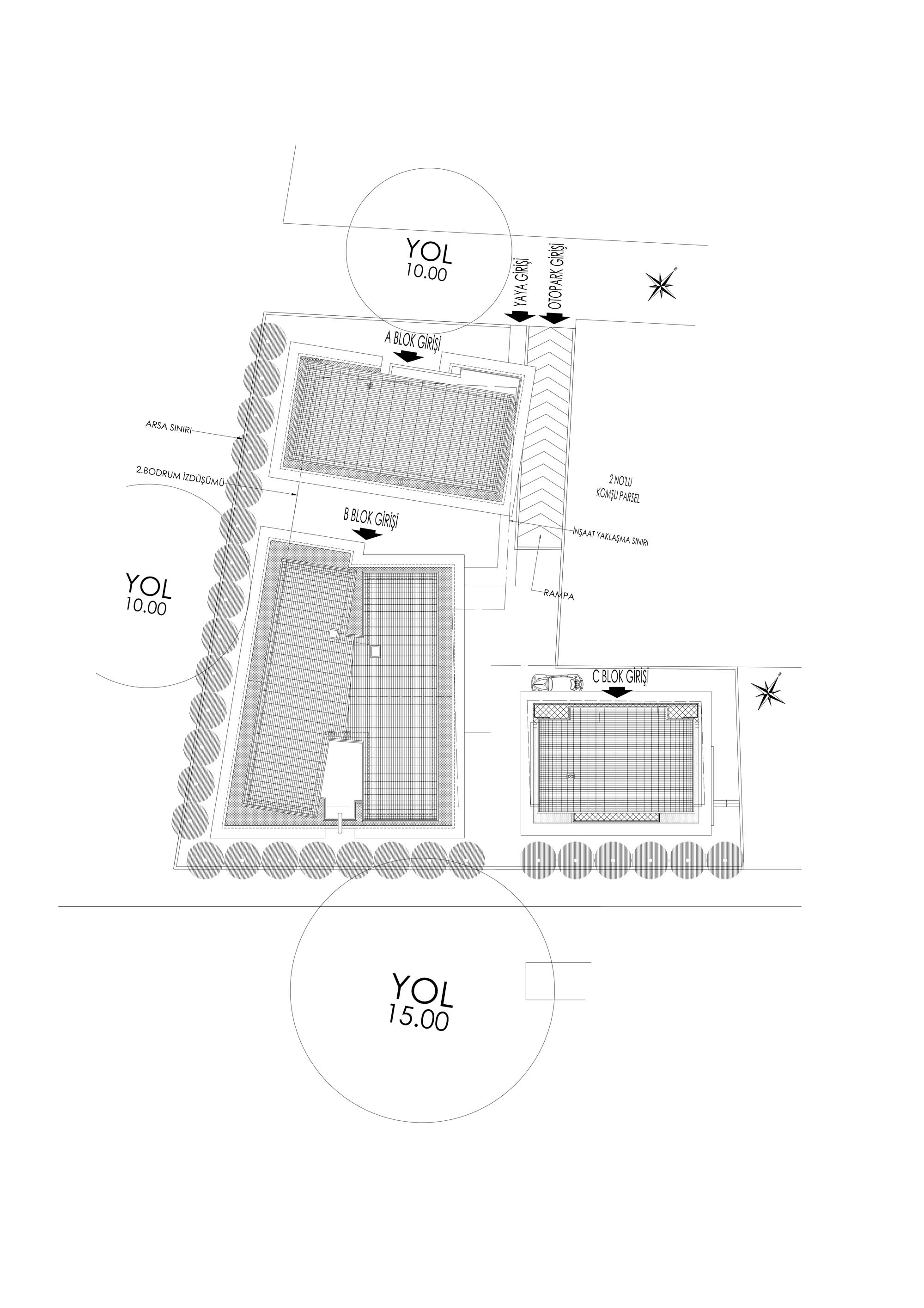
Leb-i Derya
Project Location: Antalya, Muratpaşa
Project Office: Altındal Mimarlık
Project Type: Housing Complex
Proje Tipi Grubu: Konut
Tasarım Ekibi: Şevket Altındal
Employer: Zeydan& Co
Yardımcı: Melis Akıncı Geygel
Ana Yüklenici: Zeydan& Co
Peyzaj Mimarlığı: Tagatelier, Aslı Özbilen
Projcet Manager: Şevket Altındal
Structural Project: Gürhan Mandacı
Mechanical Project: Nadir Gencel
Electrical Project: Dlk Elektrik
Plumbing Project: Nadir Gencel
Çelik Projesi: Gürhan Mandacı
Project Start Date: 2015
Project End Date: 2015
Construction Start Date: 2015
Construction End Date: 2017
Building Plot Area: 1,470 m2​
Total Construction Area: 2,700 m²