15/22
Paylaş
Resmi Orjinal Boyutunda Göster
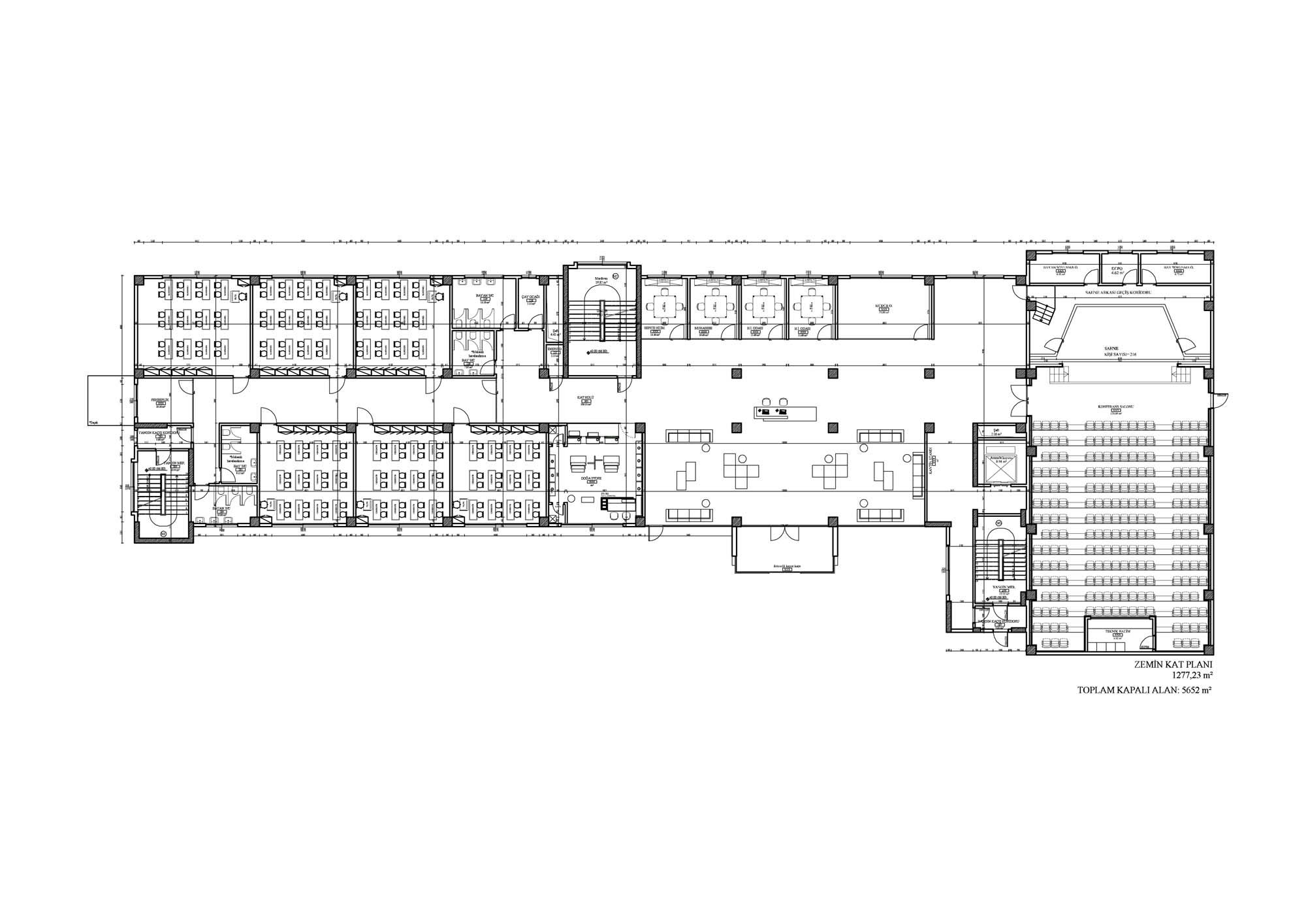
Doğa Koleji İzmir Güzelbahçe
Project Location: Güzelbahçe, İzmir
Project Office: Arkayın Mimarlık
Project Type: High School, Preschool / Nursery, İlkokul
Proje Tipi Grubu: Eğitim
Tasarım Ekibi: Tufan Arkayın, Ali Akgün, Başak Selin Uygur, Ersan Alkan, Gonca Karadirlik
Employer: Doğa Koleji
Ana Yüklenici: Gültekin İnşaat
Projcet Manager: Tufan Arkayın
Structural Project: Er-Efe Mühendislik
Mechanical Project: Matesis Mühendislik
Electrical Project: Uraz Mühendislik
Project Start Date: 2017
Project End Date: 2017
Construction Start Date: 2017
Construction End Date: 2017
Building Plot Area: 3,000 m²
Total Construction Area: 5,889 m2