18/22
Paylaş
Resmi Orjinal Boyutunda Göster
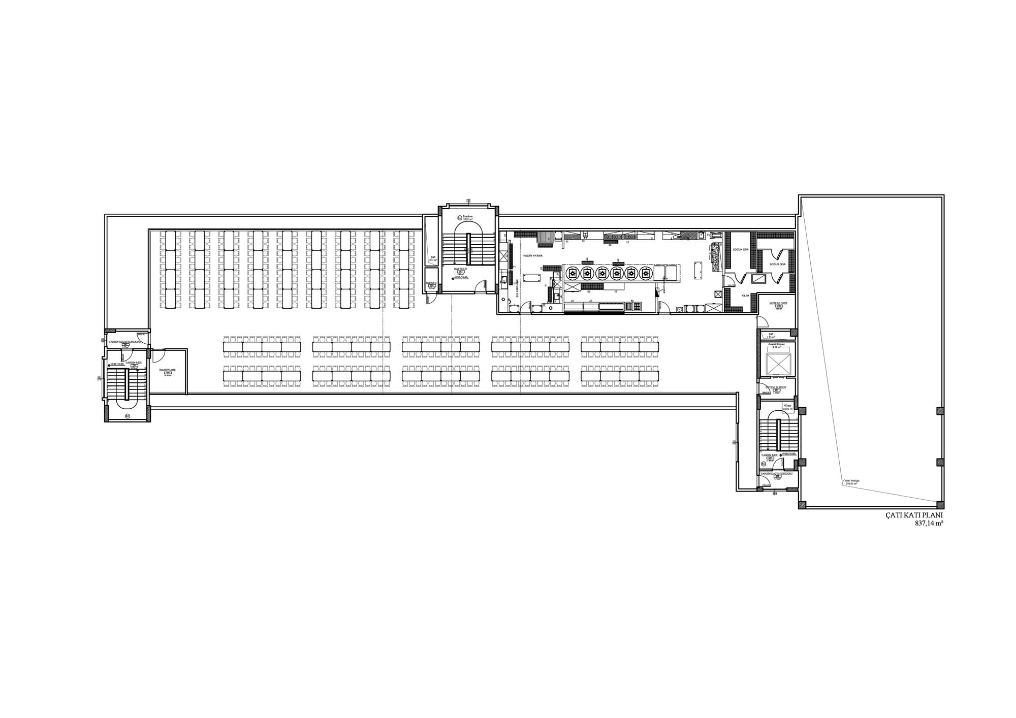
Doğa Koleji İzmir Güzelbahçe
Proje Yeri: Güzelbahçe, İzmir
Proje Ofisi: Arkayın Mimarlık
Proje Tipi: Lise / Ortaöğretim, Anaokulu / Kreş, İlkokul
Proje Tipi Grubu: Eğitim
Tasarım Ekibi: Tufan Arkayın, Ali Akgün, Başak Selin Uygur, Ersan Alkan, Gonca Karadirlik
İşveren: Doğa Koleji
Ana Yüklenici: Gültekin İnşaat
Proje Yöneticisi: Tufan Arkayın
Statik Projesi: Er-Efe Mühendislik
Mekanik Projesi: Matesis Mühendislik
Elektrik Projesi: Uraz Mühendislik
Proje Başlangıç Yılı: 2017
Proje Bitiş Yılı: 2017
İnşaat Başlangıç Yılı: 2017
İnşaat Bitiş Yılı: 2017
Arsa Alanı: 3,000 m²
Toplam İnşaat Alanı: 5,889 m2