19/24
Paylaş
Resmi Orjinal Boyutunda Göster
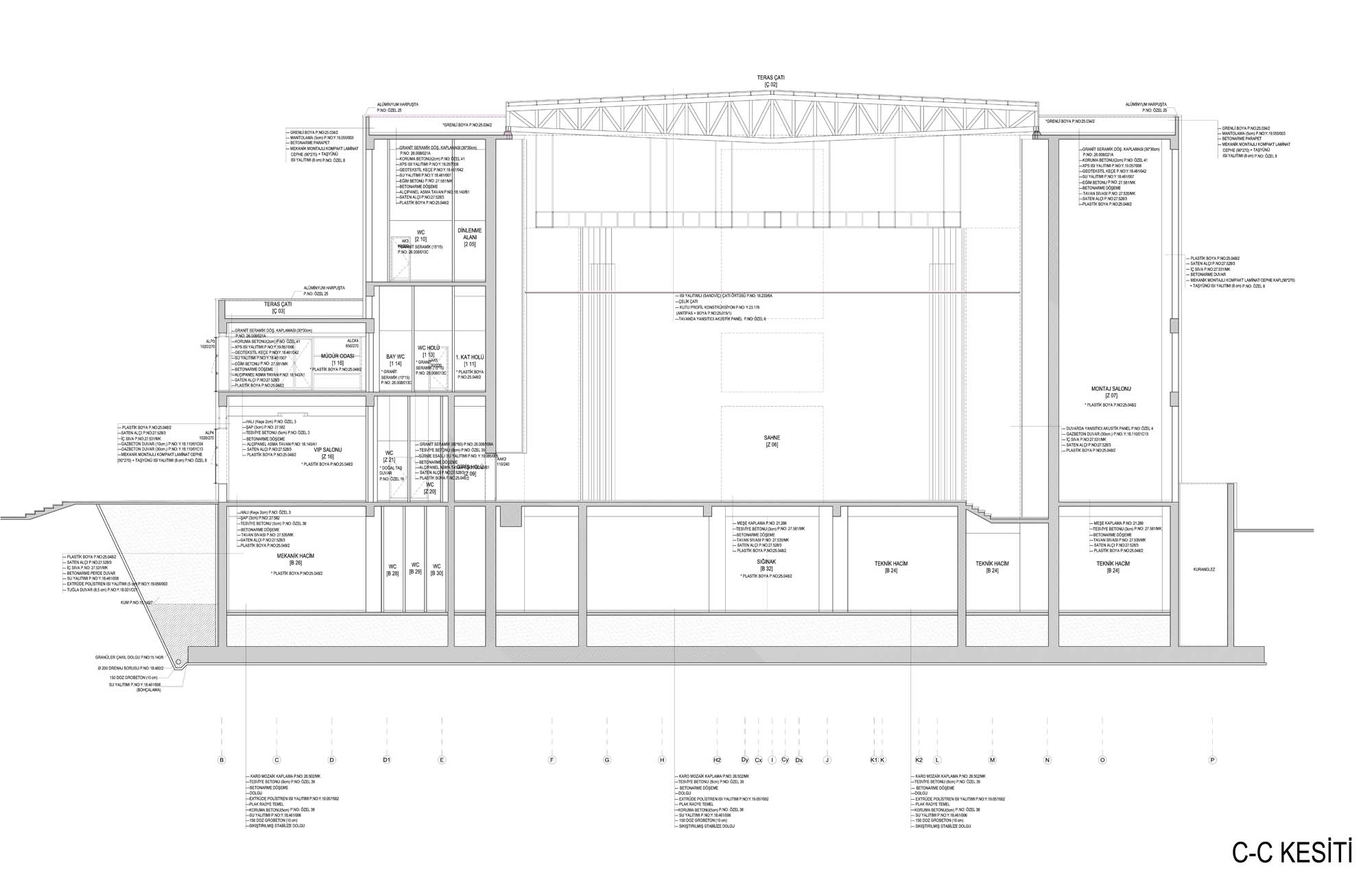
Erzincan Üniversitesi Kültür Kongre Merkezi
Project Location: Erzincan
Project Office: Atus Mimarlık
Project Type: Convention Center
Proje Tipi Grubu: Kültür, Eğitim
Tasarım Ekibi: Emre İmik
Employer: Erzincan Üniversitesi
Yardımcı: Elif Sofuoğlu, Gökçe Bayat, Selda Sayılgan, Fatma Akay, Şeyma Alaybeyoğlu, Gökhan İnci, Ebru Erdoğan Vatansever
Structural Project: İkiz Yapı
Mechanical Project: YMT Mühendislik
Electrical Project: Özay Mühendislik
Project Start Date: 2013
Project End Date: 2014
Construction Start Date: 2015
Construction End Date: 2017
Total Construction Area: 12,000 m²