20/24
Paylaş
Resmi Orjinal Boyutunda Göster
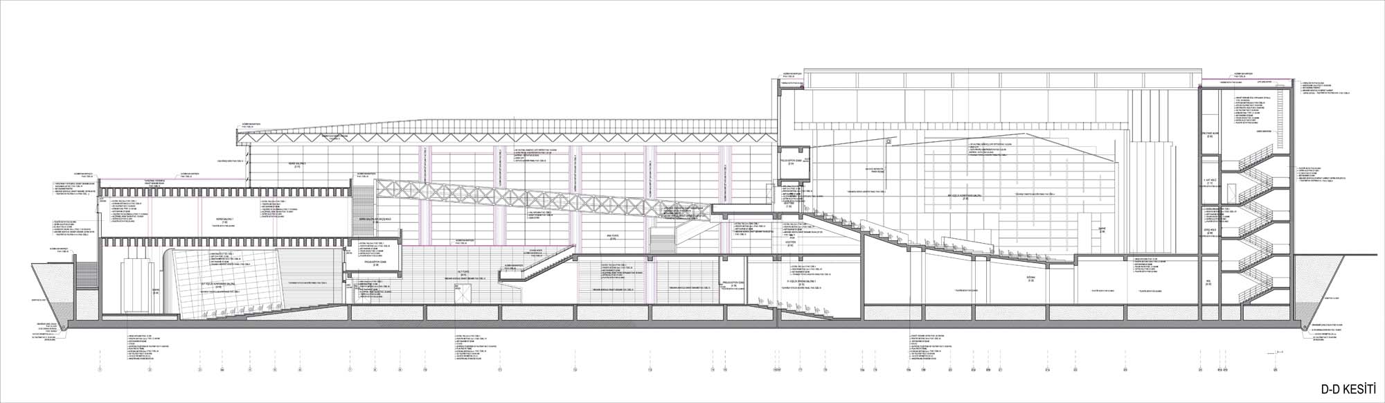
Erzincan Üniversitesi Kültür Kongre Merkezi
Proje Yeri: Erzincan
Proje Ofisi: Atus Mimarlık
Proje Tipi: Kongre Merkezi
Proje Tipi Grubu: Kültür, Eğitim
Tasarım Ekibi: Emre İmik
İşveren: Erzincan Üniversitesi
Yardımcı: Elif Sofuoğlu, Gökçe Bayat, Selda Sayılgan, Fatma Akay, Şeyma Alaybeyoğlu, Gökhan İnci, Ebru Erdoğan Vatansever
Statik Projesi: İkiz Yapı
Mekanik Projesi: YMT Mühendislik
Elektrik Projesi: Özay Mühendislik
Proje Başlangıç Yılı: 2013
Proje Bitiş Yılı: 2014
İnşaat Başlangıç Yılı: 2015
İnşaat Bitiş Yılı: 2017
Toplam İnşaat Alanı: 12,000 m²