28/32
Paylaş
Resmi Orjinal Boyutunda Göster
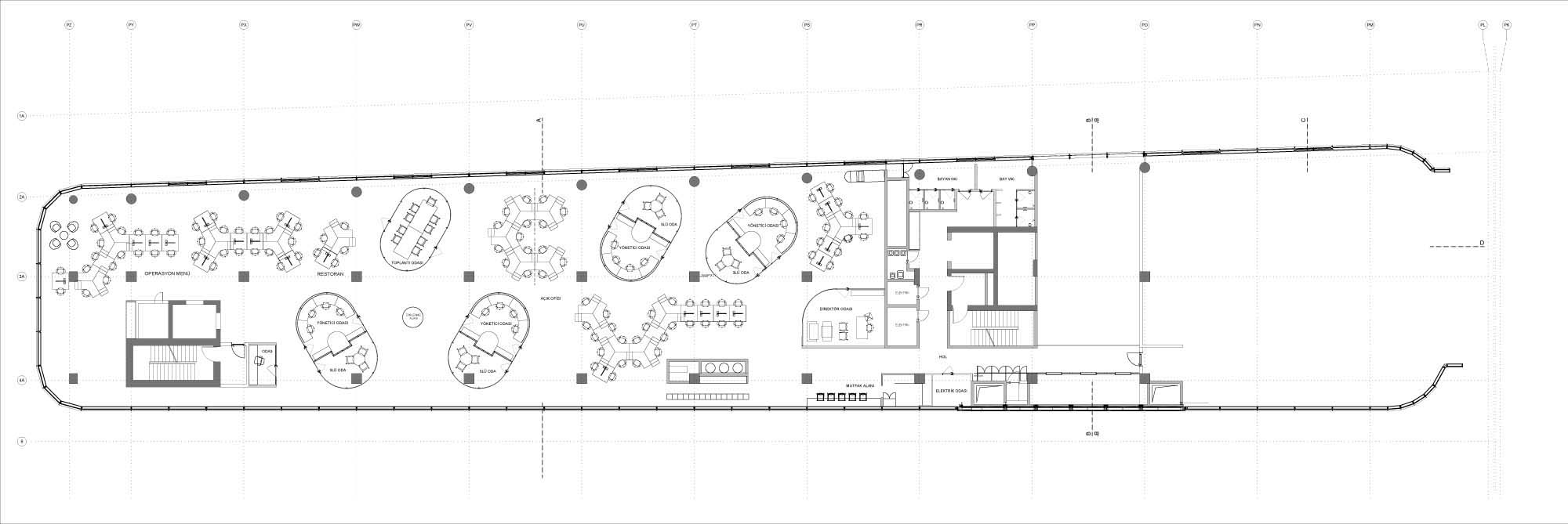
Yemeksepeti Park
Project Location: Beşiktaş, İstanbul
Project Office: Erginoğlu & Çalışlar Mimarlık
Project Type: Offices
Proje Tipi Grubu: Commercial
Tasarım Ekibi: Kerem Erginoğlu, Hasan Çalışlar, Başak Çolakoğlu Tüzer, Armağan Ekiz Bayık, Onat Över, Özge Üstündağ, Beril Çiçek, Hilal Kurt, Dila Korkmaz
Employer: Yemeksepeti
Consultant: ON/OFF Aydınlatma Tasarımı
Ana Yüklenici: Erginoğlu & Çalışlar Mimarlık
Projcet Manager: SPM Proje Yönetim
Mechanical Project: MEP Proje
Electrical Project: Bileşim Elektrik, Tasarım Proje
Plumbing Project: MEP Proje
Çelik Projesi: 2E Design Mühendislik
Photography: Cemal Emden
Project Start Date: 2017
Project End Date: 2017
Construction Start Date: 2017
Construction End Date: 2017
Total Construction Area: 9,283 m2