30/32
Paylaş
Resmi Orjinal Boyutunda Göster
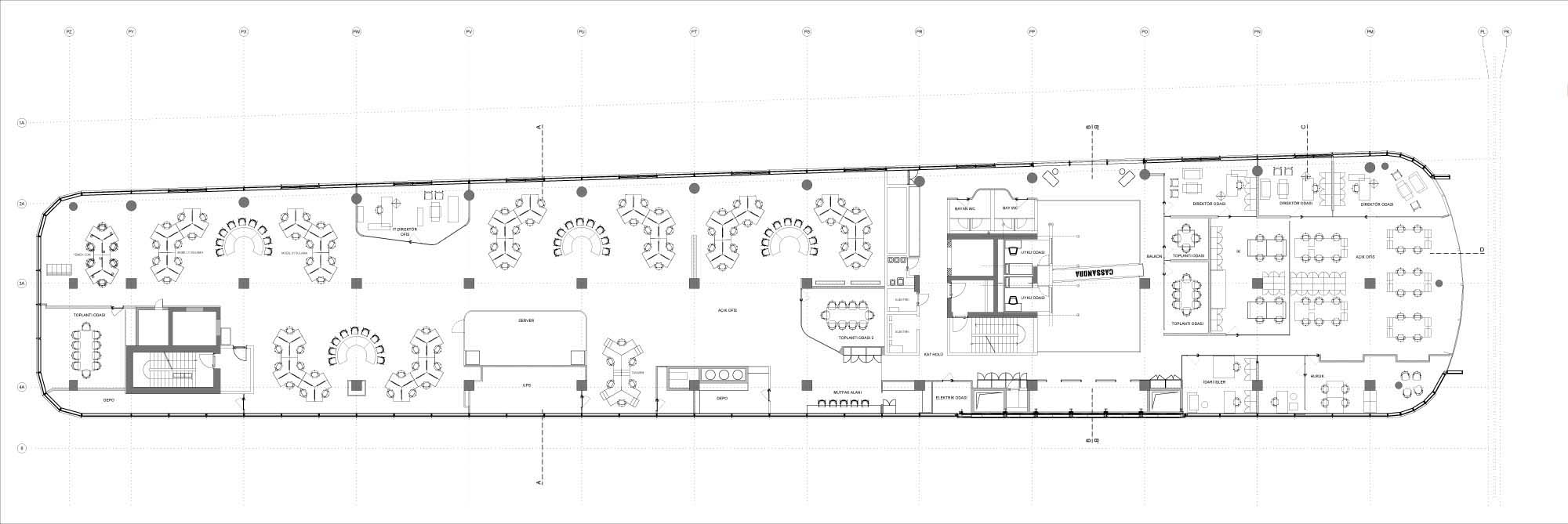
Yemeksepeti Park
Proje Yeri: Beşiktaş, İstanbul
Proje Ofisi: Erginoğlu & Çalışlar Mimarlık
Proje Tipi: Ofis
Proje Tipi Grubu: Ticari
Tasarım Ekibi: Kerem Erginoğlu, Hasan Çalışlar, Başak Çolakoğlu Tüzer, Armağan Ekiz Bayık, Onat Över, Özge Üstündağ, Beril Çiçek, Hilal Kurt, Dila Korkmaz
İşveren: Yemeksepeti
Danışman: ON/OFF Aydınlatma Tasarımı
Ana Yüklenici: Erginoğlu & Çalışlar Mimarlık
Proje Yöneticisi: SPM Proje Yönetim
Mekanik Projesi: MEP Proje
Elektrik Projesi: Bileşim Elektrik, Tasarım Proje
Tesisat Projesi: MEP Proje
Çelik Projesi: 2E Design Mühendislik
Fotoğraf: Cemal Emden
Proje Başlangıç Yılı: 2017
Proje Bitiş Yılı: 2017
İnşaat Başlangıç Yılı: 2017
İnşaat Bitiş Yılı: 2017
Toplam İnşaat Alanı: 9,283 m2